Kanadisches Blockhaus "Bear Creek Lodge"
Das Kanada Blockhaus für die 3-köpfige Familie + Arbeiten + HWR-Raum mit rund 114qm
Kanadisches Blockhaus "Bear Creek Lodge" bauen
Das besondere am Blockhaus "Bear Creek Lodge" sind der geblockte Windfang nebst Schleppdach sowie die Gauben im Obergeschoss. Außerdem hat das Blockhaus außenliegende Fußpfetten. Gerade der mit dem Schleppdach überdachte Eingangsbereich und der Windfang machen den Reiz aus.
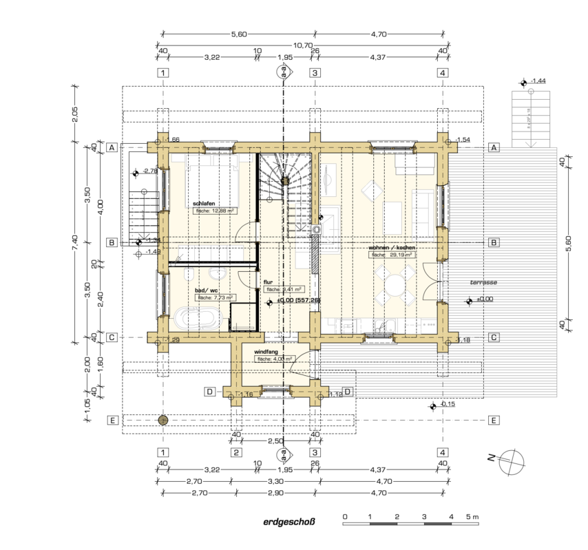
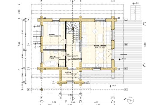
Im Erdgeschoss befindet sich das große Master-Bad, ein Schlafzimmer, welches optional natürlich auch als Arbeitszimmer genutzt werden könnte sowie der große Raum Kochen / Essen / Wohnen. Eine Spiegelung des Grundrisses wäre auch denkbar.
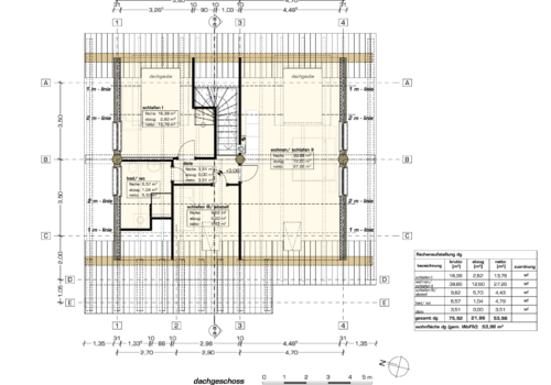
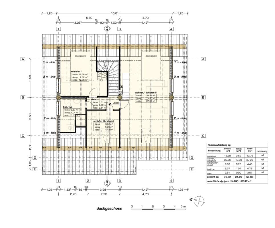
Im Obergeschoss ist ein großes Elternschlafzimmer, ein Kinderzimmer, ein weiteres Bad sowie ein Hauswirtschaftsraum vorgesehen. Alternativ kann die Raumaufteilung im OG natürlich auch verändert werden.
Dank der beiden Gauben hat man einen zusätzlichen Raumgewinn im OG und Extra - Lichteinfall.
Die Netto - Wohnfläche im Erdgeschoss beträgt 60,4qm und im OG 48,3qm. Die gesamte Nettowohnfläche beträgt mithin rund 109qm.
Natürlich kann das Blockhaus auch mit Extra - Wünschen ausgestattet werden. Bitte sprechen Sie uns bei Interesse darauf an.
Eckdaten zum Blockhaus "Bear Creek Lodge"
- Grundfläche: 10,30m x 7,40m
 - Windfang: 2,90m x 2,00m
 - Wohnfläche EG: 60,4qm
 - Wohnfläche OG: 53,9qm
 - Wohnfläche gesamt: 114,3qm
 - Räume im EG: 4
 - Räume im OG: 4
 - Satteldach mit außenliegenden Fußpfetten
 - Gauben optional möglich
 
Unser kanadisches Blockhaus "Bear Creek Lodge" kaufen Sie bereits ab:
78.875,- € zzgl. gesetzlicher Mehrwertsteuer
Im Preis enthalten sind folgende Leistungen:
- Holz aus Sachsen, Thüringen & Bayern. Holzart Fichte, Qualität B/C, Stärkeklasse 3b/4a
 - Herstellung des offenen Rohbau frei Abbundplatz in 04838 Eilenburg (Deutschland)
 - Pfetten, Säulen, Deckenbalken in Naturstamm
 - Dämmung der Längskanäle mit Dichtband & Schafwolle von ISOLENA
 - 1maliger allseitiger Voranstrich - während Bauphase - aller Stämme zum Schutz vor Bläue- und Schimmelpilzen
 - sämtliche Verbindungsmittel + Stützenfüße (sofern konstruktiv erforderlich)
 - Elektrobohrungen und Steckdosen- / Lichtschalterbohrungen - Anzahl nach Wunsch
 - Nummerierung der Stämme sowie Abbau + Verladen auf LKW im Zuge der Montage
 
Für ein vollständiges Angebot inkl. Sparren/Dachstuhl, Montage am Aufbauort und gewünschten Zusatz- und Ausbauleistungen sprechen Sie uns bitte an.
Haben Sie Interesse unser kanadisches Blockhaus "Bear Creek Lodge" zu kaufen?
Nehmen Sie zu uns Kontakt auf und fordern Sie noch heute ein unverbindliches Angebot an:
Tel.: +49 (0)3 42 3 / 74 89 01 - 0 oder -1 oder nutzen Sie unser Kontaktformular.
Wir beraten Sie gern!
Schauen Sie doch auch einmal in unsere Referenzen und lassen Sie sich dort inspirieren. Zu unseren Referenzen geht es hier.



