Kanadisches Blockhaus "Tucker"
Kanada Blockhaus Traum mit 124qm Wohnfläche und der Möglichkeit zum Probewohnen
Unser kanadisches Blockhaus "Tucker" - Beschreibung
Das Blockhaus "Tucker" eignet sich gut zur Vermietung / als Ferienhaus für Gäste, da es 6 Betten + 2x Aufbettung, mithin insgesamt bis zu 8 Betten möglich macht. Ebenfalls kann im Erdgeschoss - Bad eine Infrarot - Saunakabine integriert werden.
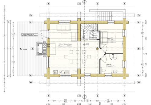
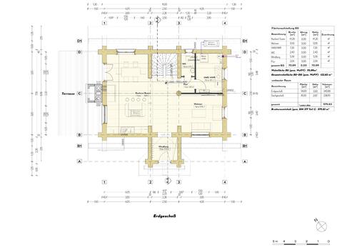
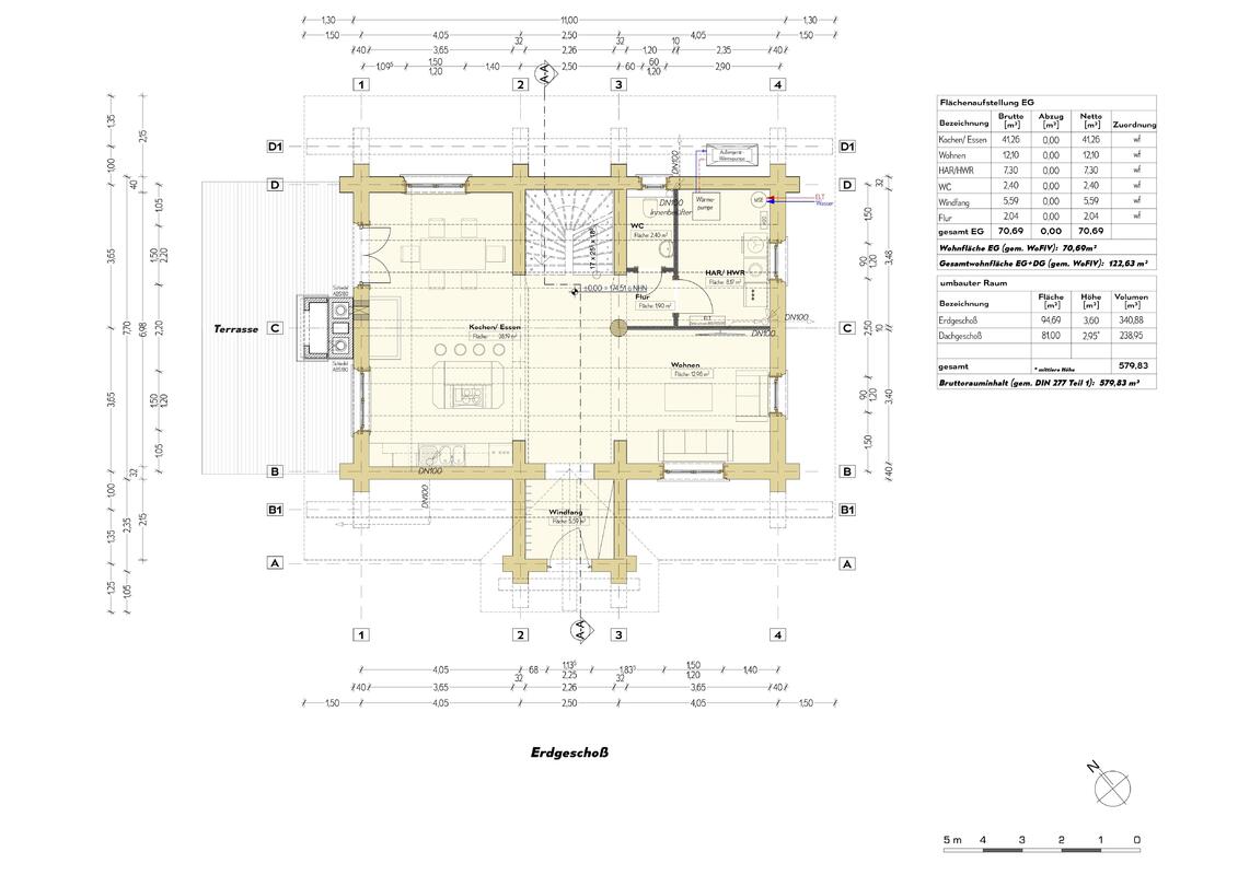
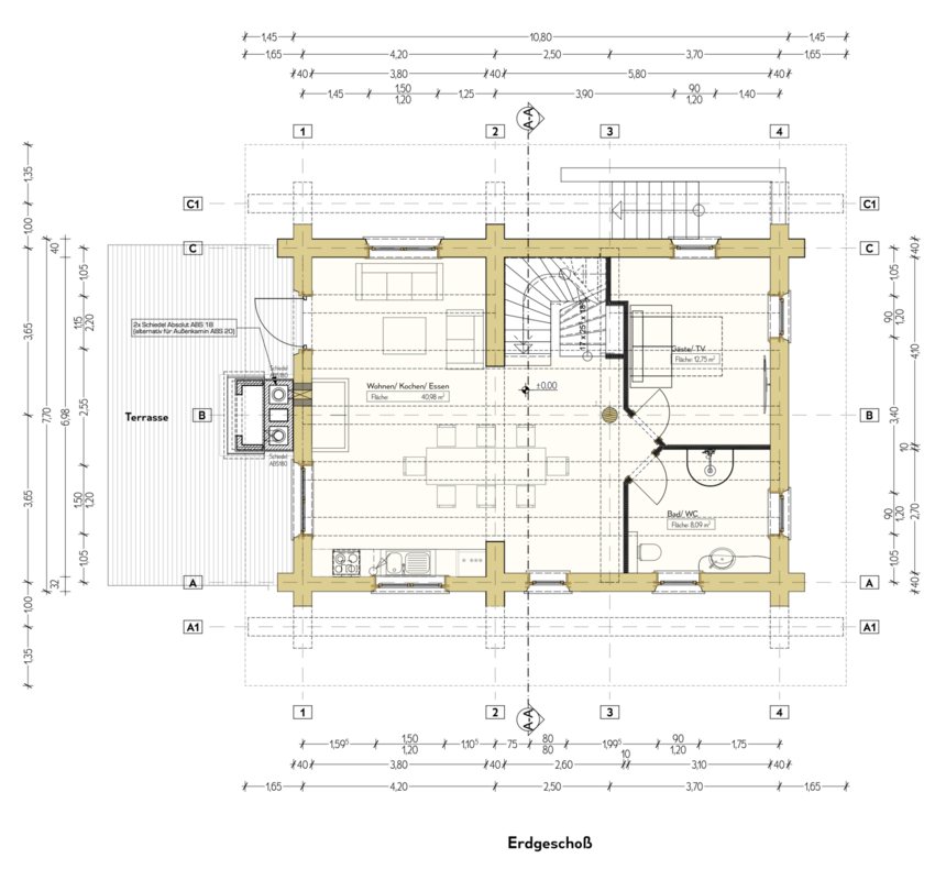
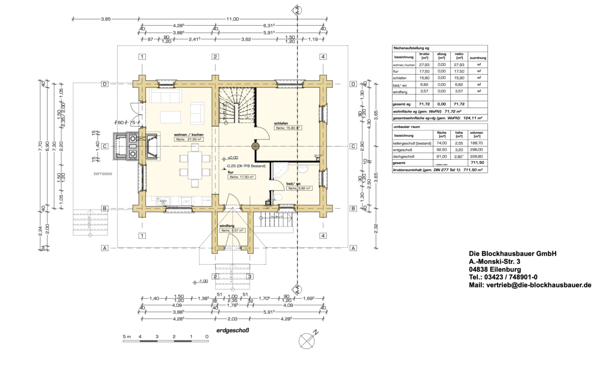
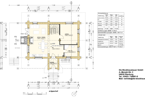
Auch für eine 3-köpfige Familie ist das Haus sehr gut geeignet. Neben einem sehr großzügigen Raum für Kochen / Essen / Wohnen gibt es im EG noch ein Bad. Bei Bedarf kann der Wohnraum verkleinert werden und ein weiteres Schlafzimmer findet seinen Platz. Das Erdgeschoss hat 71,7qm Netto - Wohnfläche.
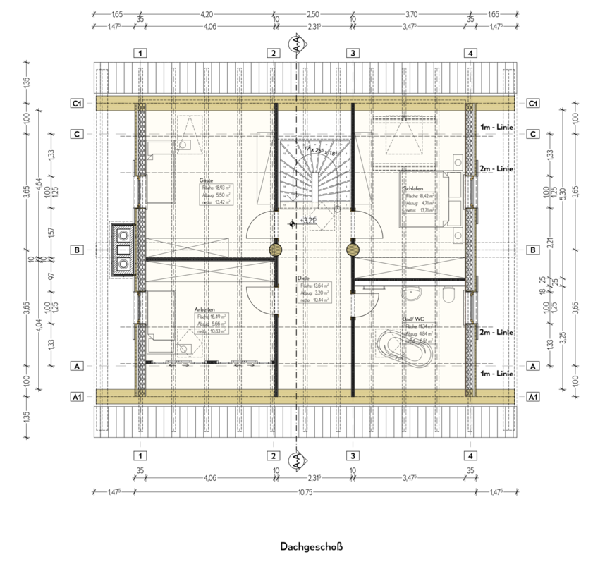
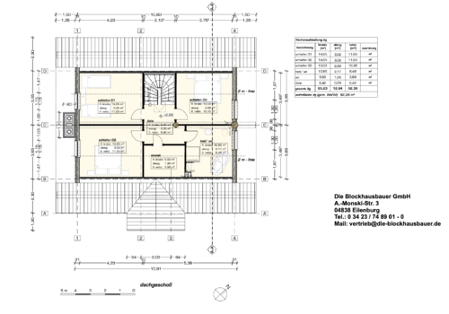
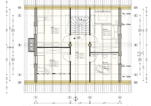
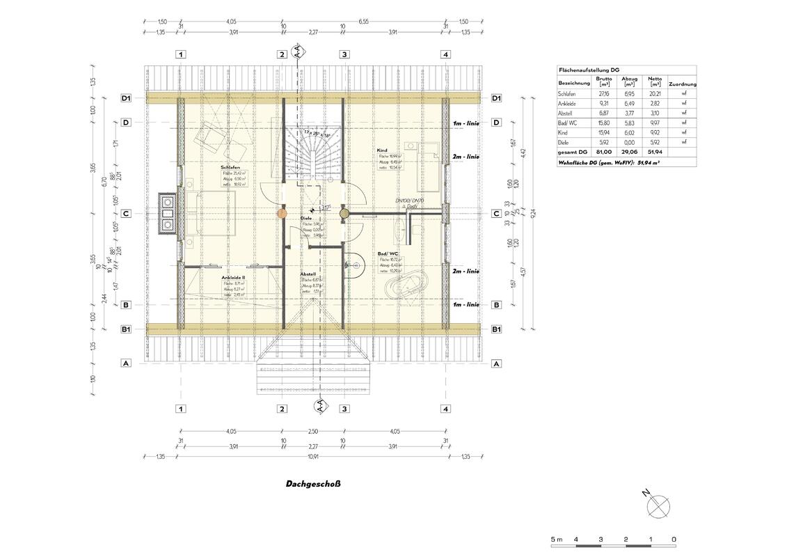
Im Obergeschoss können 2 oder bis zu 3 Schlafzimmer, 1 Bad und 1 Hauswirtschaftsraum untergebracht werden. Auch hier gilt, dass die Raumaufteilung individuell und nach den Kundenwünschen erfolgen kann. Das Obergeschoss hat 52,3qm Netto - Wohnfläche.
Der Windfang - ebenfalls in Rundstamm - kann optional gebucht werden. Die große Terrasse und der 2-zügige Schornstein für einen Innen- und einen Außenkamin machen die besonderen Highlights unserem kanadischen Blockhaus "Tucker" aus.
Bei ernsthaftem Kaufinteresse und auf Anfrage ist für dieses Blockhaus ein Probewohnen möglich. Bitte sprechen Sie uns an.
Eckdaten zum kanadischen Blockhaus "Tucker"
- Grundfläche: 11,00m x 7,70m
- Wohnfläche EG: 71,7qm
- Wohnfläche OG: 52,4qm
- Wohnfläche gesamt: 124,1qm
- Räume im EG: 3
- Räume im OG: 5
- Satteldach mit außenliegenden Fußpfetten
- Gauben optional möglich
- geblockter Windfang
Unser kanadisches Blockhaus "Tucker" kaufen Sie bereits ab
94.560,- €* zzgl. gesetzlicher Mehrwertsteuer
Im Preis enthalten sind folgende Leistungen:
- Holz aus Sachsen, Thüringen & Bayern. Holzart Fichte, Qualität B/C, Stärkeklasse 3b/4a/4b
- Herstellung des offenen Rohbau frei Abbundplatz in 04838 Eilenburg (Deutschland)
- Eckverkämmung als Diamond Notch (Doppel-Sattel)
- Pfetten, Säulen, Deckenbalken in Naturstamm
- Dämmung der Längskanäle mit Dichtband & Schafwolle von ISOLENA
- 1maliger allseitiger Voranstrich - während Bauphase - aller Stämme zum Schutz vor Bläue- und Schimmelpilzen
- Versiegelung Hirnholz mittels Wachs
- sämtliche Verbindungsmittel + Stützenfüße (sofern konstruktiv erforderlich)
- Elektrobohrungen und Steckdosen- / Lichtschalterbohrungen - Anzahl nach Wunsch
- Nummerierung der Stämme sowie Abbau + Verladen auf LKW im Zuge der Montage
Für ein vollständiges Angebot inkl. Sparren/Dachstuhl, Montage am Aufbauort und gewünschten Zusatz- und Ausbauleistungen sprechen Sie uns bitte an.
*Preis Stand 03.2025 inkl. Windfang
Haben Sie Interesse unser kanadisches Blockhaus "Tucker" zu kaufen?
Nehmen Sie zu uns Kontakt auf und fordern Sie noch heute ein unverbindliches Angebot an:
Tel.: +49 (0)3 42 3 / 74 89 01 - 0 oder -1 oder nutzen Sie unser Kontaktformular.
Wir beraten Sie gern!
Schauen Sie doch auch einmal in unsere Referenzen und lassen Sie sich dort inspirieren. Zu unseren Referenzen geht es hier.



