Naturstammhaus "Bridger"
Das Naturstammhaus "Bridger" mit viel Platz für eine große Familie
Beschreibung zum Naturstammhaus "Bridger"
Das Naturstammhaus "Bridger" zeichnet sich durch den mit rund 48qm sehr großen Raum für Wohnen / Kochen / Essen und die geblockten Innenwände aus. Zwei große Terrassenfenster lassen den zentralen Wohnraum mit viel Licht durchfluten.
Im Bereich des Hauseingang ist ein kleines Vordach mit ausgestaffelten Stammlagen vorgesehen. Die Fußpfetten sind als außenliegende Fußpfetten konzipiert.
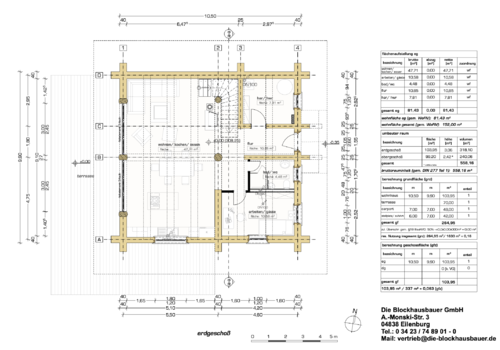
Im EG ist zudem ein großer Hauswirtschaftsraum, ein Bad mit Dusche & WC sowie ein Raum für Arbeiten und/oder Gäste. Im OG sind 4 Schlafzimmer, 1 Ankleidezimmer und 1 Bad. Die gesamte Netto - Wohnfläche beträgt 152qm, davon 81,4qm im EG und 70,5qm im OG.
Die Raumaufteilung im OG kann natürlich nach Bedarf auch angepasst werden. Ebenso können viele Zusatzwünsche durch uns realisiert werden. Bitte sprechen Sie uns dazu an.
Eckdaten zum Naturstammhaus "Bridger"
- Grundfläche: 10,50 x 9,90m
 - Wohnfläche EG: 81,4qm
 - Wohnfläche OG: 70,5qm
 - Wohnfläche gesamt: 151,9qm
 - Räume im EG: 4
 - Räume im OG: 6
 - Satteldach mit außenliegenden Fußpfetten
 - Vordach am Hauseingangsbereich
 - Gauben optional möglich
 - Pultdach / Schleppdach für Terrassenüberdachung optional möglich
 
Unser Naturstammhaus "Bridger" kaufen Sie bereits ab
106.795,- €* zzgl. gesetzlicher Mehrwertsteuer
Im Preis enthalten sind folgende Leistungen:
- PEFC-Zertifiziertes Holz aus Sachsen, Thüringen & Bayern. Holzart Fichte, Qualität B/C, Stärkeklasse 3b/4a/4b
 - Herstellung des offenen Rohbau frei Abbundplatz in 04838 Eilenburg (Deutschland)
 - Pfetten, Säulen, Unterzüge und Deckenbalken in Naturstamm
 - inkl. Sparren in Naturstamm für das kleine Vordach im Bereich Hauseingang
 - Dämmung der Längskanäle mit Dichtband & Schafwolle von ISOLENA
 - 1maliger allseitiger Voranstrich - während Bauphase - aller Stämme zum Schutz vor Bläue- und Schimmelpilzen
 - Versiegelung sämtlicher Stammvorköpfe mittels Hirnholzwachs
 - sämtliche Verbindungsmittel + Stützenfüße
 - Elektrobohrungen und Steckdosen- / Lichtschalterbohrungen - Anzahl nach Wunsch
 - Nummerierung der Stämme sowie Abbau + Verladen auf LKW im Zuge der Montage
 
Für ein vollständiges Angebot inkl. Sparren/Dachstuhl, Montage am Aufbauort und gewünschten Zusatz- und Ausbauleistungen sprechen Sie uns bitte an.
*Preis Stand 03.2024
Haben Sie Interesse das Naturstammhaus "Bridger" zu bauen?
Nehmen Sie zu uns Kontakt auf und fordern Sie noch heute ein unverbindliches Angebot an:
Tel.: +49 (0)3 42 3 / 74 89 01 - 0 oder -1 oder nutzen Sie unser Kontaktformular.
Wir beraten Sie gern!
Schauen Sie doch auch einmal in unsere Referenzen und lassen Sie sich dort inspirieren. Zu unseren Referenzen geht es hier.



