Unser Naturstamm-Fachwerk Blockhaus "Blackfoot" - Beschreibung
Das Post & Beam Blockhaus - auch Naturstamm-Fachwerk Blockhaus anstelle von "Post & Beam" ist eine mögliche Bezeichnung - Haus "Blackfoot" zeichnet sich durch einen geradlinigen jedoch zugleich sehr praktischen Grundriss aus. Es bietet viel Platz für eine Familie mit bis zu 3 Kindern.
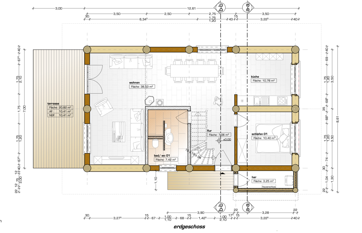
Im Erdgeschoss des Blockhaus ist ein Schlafraum, bspw. für die Eltern, vorgesehen. Natürlich kann der Raum auch anderweitig genutzt werden. Darüber hinaus gibt es eine großzügige Küche, ein Bad und den gesamten Bereich Wohnen & Essen, der bis unter das Dach offen ist (optional). Ein Kamin ist möglich. Der HWR-Raum außen kann in unterschiedlicher Größe gebaut werden und bietet Platz für die Heizung (Anlagentechnik) aber eben auch für allerlei Dinge, die es zu verstauen gilt.
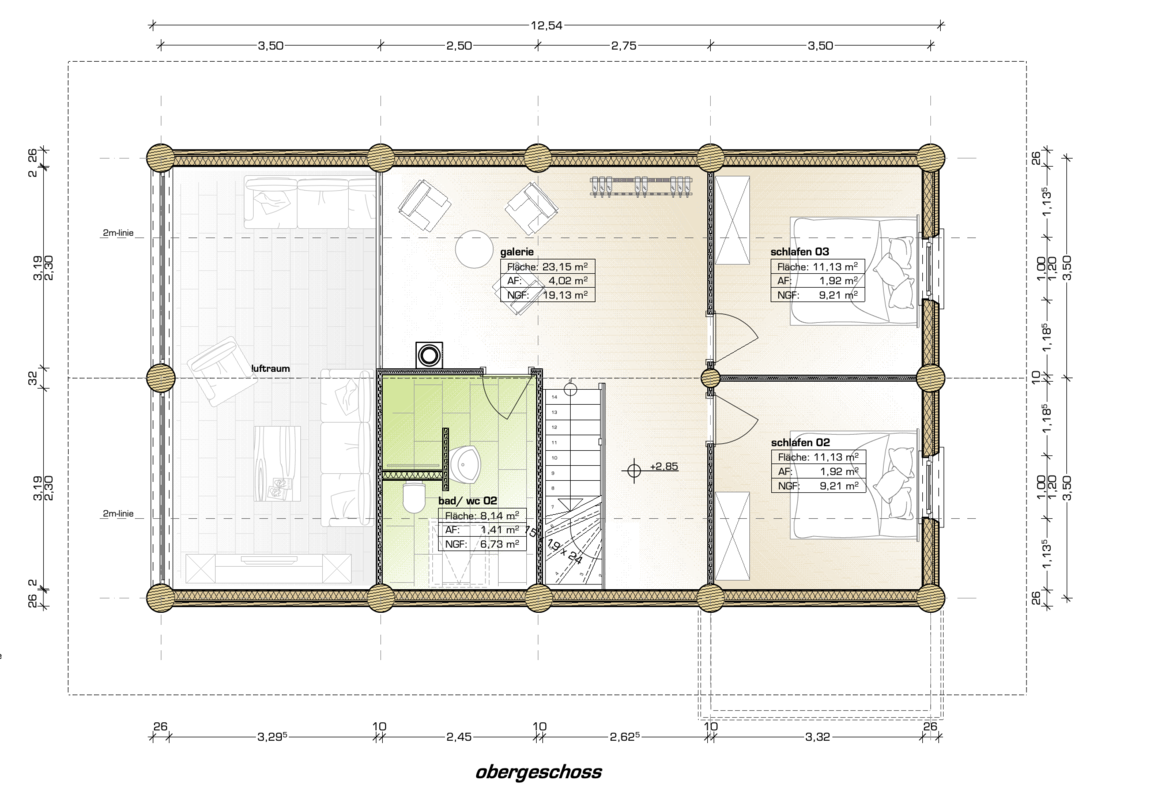
Im Obergeschoss gibt es zwei weitere Schlafräume, ein zweites Bad und eine Galerie. Der Luftraum kann aber auch vollständig geschlossen werden (vollständige Zwischendecke). Dann können anstelle des Luftraum dort noch bis zu 2 weitere Zimmer entstehen.
Die Blockwände im Grundriss sind optional. Man kann auch auf diese Blockwände verzichten und stattdessen Holztafelwände einbauen. Entscheidet man sich für Blockwände können die Stämme innenseitig rund oder besäumt (Flachschnitt) gestaltet werden.
Auch die äußere Optik des Blockhaus kann sehr stark individualisiert werden. Die Wahl des Farbton für das Öl des Holzanstrich ebenso wie der Farbton der Putzflächen kann ganz nach Geschmack des Bauherrn festgelegt werden. Ebenso ob die Giebel und Kniestock mittels Holzverkleidung geschlossen werden oder auch mit einer Putzträgerplatte (WDVS).
Die Wohnfläche des Erdgeschoss beträgt 74,2qm. Hinzu kommt der HWR-Raum, je nach Größe mit 3,25 - 9qm). Die Wohnfläche des Obergeschoss beträgt 53,55qm brutto (mit Galerie/Luftraum). Bei vollständig geschlossener Zwischendecke - je nach Anzahl Räume - rund 74qm brutto. Die Gesamtwohnfläche beträgt mithin zwischen rund 128qm bis rund 148qm brutto zzgl. HWR-Raum.
Haus Blackfoot haben wir bereits fünf (5) mal im See- und Waldresort in Gröbern gebaut. Dort können Sie das Haus auch anschauen / besichtigen. Das Blockhaus kann sehr stark individualisiert werden. Bitte sprechen Sie uns an, wir beraten Sie gern.
Seit 07.2024 ist auch ein Probewohnen in dem Blockhaus möglich. Bitte schauen Sie dazu gern unter https://www.signature-lodge.de/ für mehr Informationen und eine Buchung. Natürlich stehen auch wir für Fragen zur Verfügung.
Eckdaten zum Post & Beam Blockhaus "Blackfoot"
- Grundfläche: 12,61m x 7,00m
- Wohnfläche EG: 74,2qm
- Fläche HWR-Raum: 3,25 - 9qm (optional erweiterbar)
- Wohnfläche OG: 53,55qm bis 74qm brutto (bei Verzicht auf Galerie/Luftraum)
- Wohnfläche gesamt: 128qm bis rund 148qm (brutto) zzgl. HWR-Raum
- Räume im EG: 4 zzgl. HWR-Raum
- Räume im OG: 3 zzgl. Galerie oder 5 Räume + Flur möglich
- Satteldach
- Blockwände optional
- Holztafelwände mit KvH 8/18
- Außendämmung der Holztafelwände mittels 60mm Holzfaserdämmplatten
- Innendämmung der Holztafelwände mittels 180mm Holzfaserdämmung
- Hoher Grad an Individualisierung möglich. Für eine Beratung stehen wir gern zur Verfügung.
Unser Naturstamm-Fachwerk (Post & Beam) Blockhaus "Blackfoot" kaufen Sie bereits ab
125.000,- €* zzgl. gesetzlicher Mehrwertsteuer
Zu diesem Preis erwerben Sie von uns bereits eine geschlossene Gebäudehülle inkl. Montage (exkl. Fenster & Türen). Im Preis enthalten sind konkret folgende Leistungen:
- Holz aus Sachsen, Thüringen & Bayern. Holzart Fichte, Qualität B/C, Stärkeklasse 3b/4a/4b
- Herstellung sämtlicher Rohbau - Bauteile (Säulen, Rähm, Wände, Deckenbalken, Pfetten, Sparren) frei Abbundplatz in 04838 Eilenburg (Deutschland)
- Pfetten, Säulen, Deckenbalken, (Block)Wände (2 Blockwände im angegebenen Preis unterstellt!) und Rähm in Naturstamm
- Sparren in Konstruktionsvollholz (KvH, nsi, Fichte)
- Schwellholz als Brettschichtholz in Fichte (kann auch in Stein im Zuge Tiefbau / Herstellung Bodenplatte ausgeführt werden)
- Holztafelwände in 8/18 KvH, nsi, Fichte
- (Außen)Dämmung der Holztafelwände mittels 60mm Holzfaserdämmplatte
- (Innen)Dämmung der Holztafelwände mittels 180mm Holzfaserdämmung
- Innenseitige Verkleidung der Holztafelwände mittels 15mm OSB/3
- Dämmung der Längskanäle der Blockwände mit Dichtband & Schafwolle von ISOLENA
- 1maliger allseitiger Voranstrich - während Bauphase - aller Stämme zum Schutz vor Bläue- und Schimmelpilzen
- sämtliche Verbindungsmittel
- Elektrobohrungen und Steckdosen- / Lichtschalterbohrungen in Blockwänden - Anzahl nach Wunsch
- Transport sämtlicher Bauteile zum Kunden (Preis variiert je nach Entfernung)
- Montage der Blockhausbauteile, der Sparren und der Holztafelwände (Außen- und Innenwände im EG und OG) auf bauseits durch Auftraggeber fertig vorbereiteter Bodenplatte**
- Belegen von Dach und Zwischendecke mittels Profilholz Fasebrett, N/F, Fichte in 24mm bzw. 28mm
- Belegen der Zwischendecke oberhalb des Fasebrett mit 15mm OSB/3
- regensicheres ausbilden des Dach (keine Dämmung, keine Eindeckung, keine Dachklempnerarbeiten)
Für ein vollständiges Angebot und gewünschten Zusatz- und Ausbauleistungen sprechen Sie uns bitte an.
*Preise Stand 01.2025
**Anreise- und Übernachtungskosten der Monteure sind noch nicht Bestandteil des Preises, da diese in Abhängigkeit vom Montageort variieren.
Haben Sie Interesse unser Post & Beam Blockhaus "Blackfoot" zu kaufen?
Nehmen Sie zu uns Kontakt auf und fordern Sie noch heute ein unverbindliches Angebot an:
Tel.: +49 (0)3 42 3 / 74 89 01 - 0 oder -1 oder nutzen Sie unser Kontaktformular.
Für ein Probewohnen im Post & Beam Blockhaus "Blackfoot" nutzen Sie gern diesen Link: https://www.signature-lodge.de/
Wir beraten Sie gern!
Schauen Sie doch auch einmal in unsere Referenzen und lassen Sie sich dort inspirieren. Zu unseren Referenzen geht es hier.



