Unser Post und Beam Blockhaus "Moose I" - Beschreibung
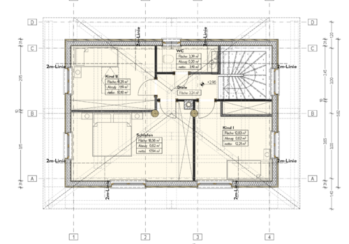
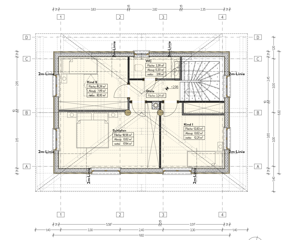
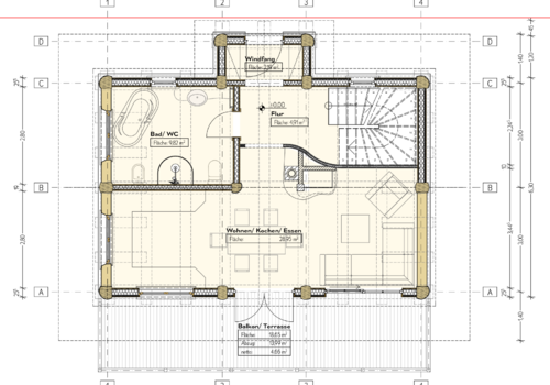
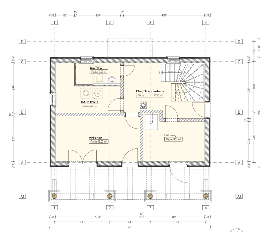
Unser Post & Beam Blockhaus "Moose" eignet sich perfekt für Baugrundstücke mit einer Hanglage. Das Haus verteilt die Nutzräume und Wohnräume auf 2,5 Etagen. Es eignet sich für eine Familie mit bis zu 2 Kindern oder 1 Kinder- und 1 Gästezimmer.
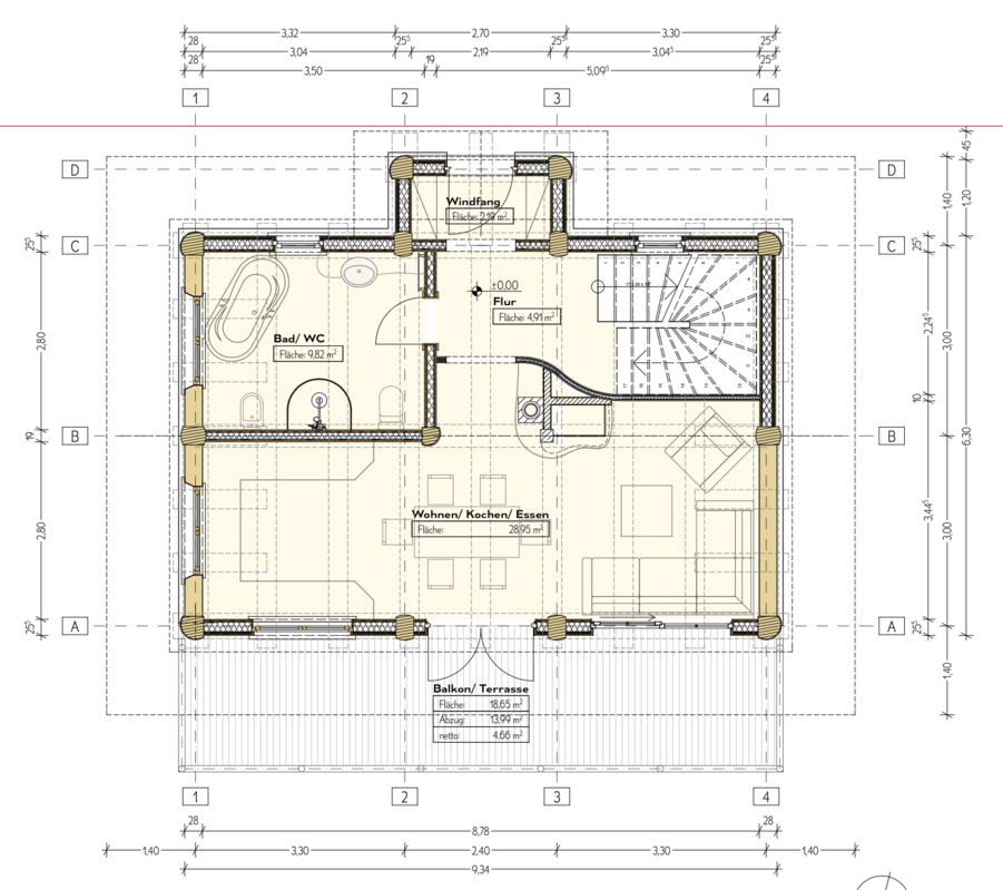
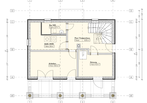
Im Kellergeschoss findet sich neben den Technikräumen und dem Hauswirtschaftsraum noch genügend Platz für ein Büro und ein Bad/WC. Im EG ist das großzügige Wohnen/Kochen/Essen und ein Bad und im Obergeschoss die Schlafräume und ein weiteres Bad. Ein besonders schönes Highlight ist das etwas auskragende Obergeschoss. Dies verschafft oben etwas mehr Wohnraum.
Auch die Dachkonstruktion verdient Aufmerksamkeit. "Standard" ist sie bei der Ausführung im Haus "Moose I" jedenfalls nicht.
Ein schönes Blockhaus für eine kleine Familie.
Eckdaten zum Post & Beam Blockhaus "Moose I"
- Die Nutz- und Wohnfläche beträgt insgesamt 139,47qm und teilt sich wie folgt auf:
- Kellergeschoss: 44,29qm, davon 1 Arbeitszimmer mit 13,6qm
- Erdgeschoss: 45,87qm
- Obergeschoss: 49,31qm
- Kellergeschoss in Hanglage in Betonausführung (konkrete Ausführung ist abhängig von der Bodengrunduntersuchung am jeweiligen Standort)
- Erdgeschoss Ständerrahmenkonstruktion in Naturstamm (Säulen, Rähm, Blockwände, Deckenbalken)
- Erdgeschoss Holztafelwände zwischen den Naturstammsäulen, innenseitig geschlossen mittels OSB, Außenseitig 60mm SteicoProtect Putzträgerplatte oder gleichwertig
- Dämmung der Gefache der Holztafelwände mittels Holzweichfaserdämmung. Die gesamte Dämmstärke der Wand beträgt sodann 24cm.
- Obergeschoss vollständig in Holzrahmenbau (Ausführung wie im EG)
- Verkleidung der Außenansichten des OG mittels Lärche, Ausführung als Boden-Deckel-Schalung
- Sparren in 4-Kant (KvH), jedoch Flugsparren in Naturstamm
- Pfetten in Naturstamm
- Schalung oberhalb der Sparren in Profilholz Fasebrett Fichte, 24mm
- Ausbilden einer regensicheren Notdacheindeckung (Folie)
- Schalung oberhalb der Balkenlage (Deckenbalken) in Profilholz Fichte, 28mm
Unser Post & Beam Blockhaus "Moose I" bauen Sie bereits ab
130.000,- € zzgl. gesetzlicher Mehrwertsteuer
Zu diesem Preis erwerben Sie von uns bereits eine komplett geschlossene Gebäudehülle (ausgenommen Fenster + Türen) inkl. Montage. Im Preis enthalten sind konkret folgende Leistungen:
- Holz aus Sachsen, Thüringen & Bayern. Holzart Fichte, Qualität B/C, Stärkeklasse 3b/4a/4b
- Herstellung sämtlicher Rohbau - Bauteile (Säulen, Rähm, Wände, Deckenbalken, Pfetten, Flugsparren) frei Abbundplatz in 04838 Eilenburg (Deutschland)
- Pfetten, Säulen, Deckenbalken, (Block)Wände (3 Blockwände im angegebenen Preis unterstellt!) und Rähm in Naturstamm
- Säulen, Unterzug und Balkenlage des Balkon in Naturstamm, Ausführung in Lärche
- ausbilden eines Fußboden Balkon, regensicher (Untersicht in Fasebrett, Flachdachfolie, UK + Obersicht in Terrassendielen in Lärche, 3fach geölt)
- ausbilden eines Balkongeländer in Lärche
- Sparren in Konstruktionsvollholz (KvH, nsi, Fichte). Flugsparren in Naturstamm
- Schwellholz als Brettschichtholz in Fichte (kann auch in Stein im Zuge Tiefbau / Herstellung Bodenplatte ausgeführt werden)
- Holztafelwände in 8/18 KvH, nsi, Fichte (Außenwände)
- (Außen)Dämmung der Holztafelwände mittels 60mm Holzfaserdämmplatte
- Dämmung der Gefache der Holztafelwände mittels 180mm Holzfaserdämmung
- Innenseitige Verkleidung der Holztafelwände mittels 15mm OSB/3
- Holztafelwände in 8/10 KvH, nsi, Fichte (Innenwände im EG und OG)
- Dämmung der Längskanäle der Blockwände mit Dichtband & Schafwolle von ISOLENA
- 1maliger allseitiger Voranstrich - während Bauphase - aller Stämme zum Schutz vor Bläue- und Schimmelpilzen
- sämtliche Verbindungsmittel
- Elektrobohrungen und Steckdosen- / Lichtschalterbohrungen in Blockwänden - Anzahl nach Wunsch
- Transport sämtlicher Bauteile zum Kunden (Preis variiert je nach Entfernung)
- Montage der Blockhausbauteile, der Sparren und der Holztafelwände (Außen- und Innenwände im EG und OG) auf bauseits durch Auftraggeber fertig vorbereiteter Bodenplatte*
- Belegen von Dach und Zwischendecke mittels Profilholz Fasebrett, N/F, Fichte in 24mm bzw. 28mm
- (Außen)Verkleidung der Giebel mittels 30mm Lärchenholz, unbesäumt, gehobelt in Boden-Deckel-Ausführung
- regensicheres ausbilden des Dach (keine Dämmung, keine Eindeckung, keine Dachklempnerarbeiten)
Für ein vollständiges Angebot und gewünschten Zusatz- und Ausbauleistungen sprechen Sie uns bitte an.
*Anreise- und Übernachtungskosten der Monteure sind noch nicht Bestandteil des Preises, da diese in Abhängigkeit vom Montageort variieren.
Haben Sie Interesse unser Post & Beam Blockhaus "Moose I" zu kaufen?
Nehmen Sie zu uns Kontakt auf und fordern Sie noch heute ein unverbindliches Angebot an:
Tel.: +49 (0)3 42 3 / 74 89 01 - 0 oder -1 oder nutzen Sie unser Kontaktformular.
Wir beraten Sie gern!
Schauen Sie doch auch einmal in unsere Referenzen und lassen Sie sich dort inspirieren. Zu unseren Referenzen geht es hier.



