Halbstamm - Blockhaus "Finn"
Als Gartenhaus, Partyhaus, Gästehaus, Sauna oder für Campingplätze geeignet.
Entdecken Sie die Finnhütte "Finn" – Ihr Traum-Blockhaus in Halbstamm-Bauweise
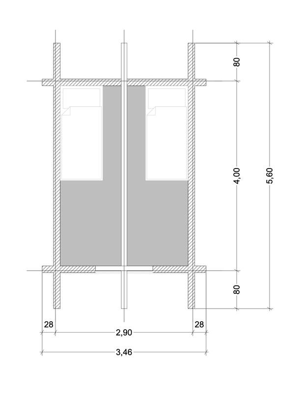
Willkommen bei "Finn", Ihrem maßgeschneiderten Blockhaus, das skandinavische Gemütlichkeit und moderne Baukunst vereint. Unsere Finnhütte wird in traditioneller Halbstamm-Bauweise gefertigt und bietet Ihnen die Möglichkeit, den Grundriss flexibel anzupassen – ob kompakte 2,90m x 4m oder eine größere Variante ganz nach Ihren Wünschen.
Nachhaltigkeit trifft auf Design
"Finn" besticht durch seine nachhaltige Bauweise: Die unteren vier Stammlagen sind mit einer beeindruckenden Wandstärke von ca. 160mm in authentischer Baumstammoptik gestaltet. Die Giebel sind in hochwertiger Holzrahmenbauweise gefertigt und mit einer 80mm Holzweichfaserdämmung isoliert. Außenseitig sorgt eine elegante Lärchenschalung für natürlichen Charme, während innen Fichten-Fasebretter mit Nut und Feder für ein warmes Ambiente sorgen.
Energieeffiziente Konstruktion
Dank der 120mm Aufsparrendämmung im Dach bleibt Ihr Blockhaus das ganze Jahr über energieeffizient. Die langlebige Metalldacheindeckung bietet zusätzlichen Schutz und minimiert den Wartungsaufwand.
Flexible Gründungsoptionen
Ob auf einer bauseits vorbereiteten Bodenplatte oder auf innovativen Erdschrauben – "Finn" passt sich Ihren Gegebenheiten an und garantiert eine stabile und sichere Basis.
Erleben Sie die perfekte Kombination aus traditionellem Handwerk und modernem (Wohn)Komfort. Kontaktieren Sie uns noch heute, um mehr über die Anpassungsmöglichkeiten Ihrer Finnhütte "Finn" zu erfahren!
Unser Gartenblockhaus "Finn" kaufen Sie bereits ab
4.518,- € * zzgl. 19% Mehrwertsteuer
*offener Rohbau frei Abbundplatz in Eilenburg. Preis bezieht sich auf einen 2,90x4m Grundriss - Stämme, Sparren und First in Holzart Fichte, jedoch ohne Montage und weiteren Ausbau etc.. Bitte beachten Sie die Leistungsbeschreibung "offener Rohbau" und die umfangreiche Preisaufstellung, welche Sie sich als PDF herunterladen können.
Alternative Grundrisse sowie Zusatzleistungen bis hin zum schlüsselfertigen Blockhaus können nach Absprache ganz individuell + nach Ihren Wünschen angeboten werden. Stand: Februar 2025
Haben Sie Interesse das Blockhaus "Finn" zu kaufen?
Nehmen Sie zu uns Kontakt auf und fordern Sie noch heute ein unverbindliches Angebot an:
Tel.: +49 (0)3 42 3 / 74 89 01 - 0 oder -1 oder nutzen Sie unser Kontaktformular.
Wir beraten Sie gern!
Schauen Sie doch auch einmal in unsere Referenzen der Halbstamm-Blockhäuser und lassen Sie sich dort von weiteren Blockhaussauna und Blockhaus Gartenhaus Modellen inspirieren. Zu unseren Referenzen geht es hier.



