Whitefish Creek II
Das Halbstammblockhaus zur Nutzung als Wochenend- und Ferienhaus
Das Halbstammblockhaus "Whitefish Creek II" - Luxus für Ihren Garten
Unser Halbstammblockhaus "Whitefish Creek II" - Wenn es schon mal "ein etwas größeres" Blockhaus für den Garten sein darf. Das Blockhaus misst mindestens 5m in der Breite und 8m in der Länge und unterscheidet sich dadurch von seinem etwas kleineren Bruder, dem "Whitefish Creek I" aufgrund seiner Größe. Das Blockhaus kann ohne größere Probleme bis zu 8m x 8m Grundriss erstellt werden. Noch größere Grundrisse sind auf Anfrage auch möglich, jedoch gilt es dann sorgfältig abzuwägen, ob sich da nicht wieder das klassische Rundstamm Blockhaus eher lohnt.
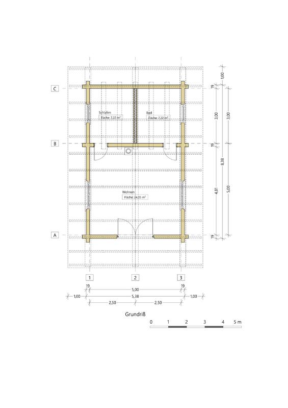
Das Halbstammblockhaus kann einen großen offenen Raum haben oder innen auch durch Blockwände und/oder Holzrahmenbauwände in mehrere Wohnräume abgetrennt werden. So kann ohne weiteres ein Wohnraum mit Küche, ein Bad und ein Schlafraum sowie ein Schlafboden eingebaut werden. Andere Raumkombinationen sind auch möglich.
Auf Wunsch kann das Halbstammblockhaus "Whitefish Creek II" auch ein Vordach oder ein seitlich abgeschlepptes Dach als Terrassenüberdachung bekommen. Bei der Dachform sind alle Möglichkeiten vorhanden.
Das Halbstammblockhaus kann aufgrund seiner Größe als Wochenend- und Ferienhaus genutzt werden. Selbst ein Kamin kann eingebaut werden. Bitte beachten Sie jedoch, dass eine Nutzung als 1. Wohnsitz (= dauerhafte Wohnnutzung) aufgrund der GEG (Stichwort: Energiepass) in Deutschland nicht genehmigungsfähig ist/wäre.
Für das Halbstammblockhaus "Whitefish Creek II" ist immer eine Baugenehmigung inkl. Statik erforderlich. Die Genehmigungsplanung können wir Ihnen auf Wunsch anbieten.
Leistungsbeschreibung "Offener Rohbau" des Halbstammblockhaus
- Herstellung des Gartenblockhaus - Rohbau in Halbstamm-Bauweise
- Die Stämme sind innenseitig besäumt sowie mit einem Flachschnitt oben und unten versehen
- Als Holzart wird Fichte Güteklasse B/C, Stärkeklasse 3a/b verwendet
- Die Wanddicke beträgt nach Bearbeitung ca. 14-16cm. Die Höhe je Stamm ca. 25cm
- Die Eckverbindungen werden mit einer speziell für Halbstamm-Blockhäuser entwickelten Technik hergestellt
- ein First in Naturstamm ist inkludiert
- Das Holz des Rohbau wird mit einem Bläue- und Schwarzschimmel - Pilzschutz und UV-Blocker gestrichen
- Bis zu zwei Türausschnitte sowie bis zu fünf Fensterausschnitte werden vorbereitet
- Elektrobohrungen und Bohrungen für Steckdosen und Lichtschalter werden vorbereitet. Die genaue Lage wird mit dem Kunden besprochen
- Die letzten Stammlagen dienen zugleich als Fußpfette und erhalten die notwendigen Schrägschnitte, so dass ein Satteldach montiert werden kann
Zusatzleistungen bis hin zum schlüsselfertigen Gartenblockhaus:
- Fundamente und Fußboden
- Herstellung von Punktfundamenten und Balkenlage (Schwellholz) oder alternative Herstellung einer Bodenplatte inkl. Schwellholz
- Dämmung des Fußboden und Einbau einer Massivholzdielung
- Bau eines Terrassendeck mit Belegung nach Wahl
- Dach
- Sparren in Konstruktionsvollholz (KvH), Fichte, 12/18 oder größere Querschnitte einschließlich Stellbrettern oder in Naturstamm
- Dacheindeckung mit Fasebrett, Fichte, 22,5mm oder Boden-Deckel-Schalung Lärche, unbesäumt
- Dachdämmung und regensichere Notdachfunktion
- Dacheindeckung als Gründach, Ziegeldach, Bitumenschindel oder Metalldacheindeckung (je nach Kundenwunsch, auch verschiedene Farben möglich)
- Rohbau
- "Vor- und Zurück - Optik" der Stämme an den Eckverbindungen
- Wahl ob seitlich abgeschlepptes Dach oder verlängertes Dach am Eingang oder beides
- Die Isolierung zwischen den einzelnen Stammlagen erfolgt auf Wunsch mit einem Fugendichtband
- Schnitzkunst
- Innenausbau
- 1 oder wahlweise 2 Türen / Terrassentüren
- Wahlweise bis zu 5 Fenster (in Abhängigkeit von der Größe des Gartenblockhaus)
- Kamin und Schornstein
- Schlafboden (optional)
- Anstrich
- Außenanstrich mittels Naturöllasur in einem Farbton Ihrer Wahl
- Zusätzlicher Außenanstrich mit einem Edelwachs- und UV-Blocker optional möglich
- Die Transportkosten richten sich nach der Entfernung und können erst im Zuge einer Angebotserstellung genau bestimmt werden
- Montage
- Wird die Montage durch unser Fachpersonal gewünscht, finden die diesbezüglichen Kosten im Zuge einer Angebotserstellung Berücksichtigung
Unser Gartenblockhaus "Whitefish Creek II" kaufen Sie bereits ab
20.750,- € * zzgl. 19% Mehrwertsteuer
*offener Rohbau frei Abbundplatz in Eilenburg. Preis bezieht sich auf einen 5x8m Grundriss mit einer geblockten Innenwand und einem 3x5m Schlafboden - jedoch ohne nach vorn oder seitlich verlängerten Dachflächen - in Holzart Fichte. Bitte beachten Sie die nebenstehende Leistungsbeschreibung "offener Rohbau". Alternative Grundrisse sowie Zusatzleistungen bis hin zum schlüsselfertigen Blockhaus können nach Absprache ganz individuell + nach Ihren Wünschen angeboten werden. Stand: April 2023
Haben Sie Interesse das Blockhaus Gartenhaus "Whitefish Creek II" zu kaufen?
Nehmen Sie zu uns Kontakt auf und fordern Sie noch heute ein unverbindliches Angebot an:
Tel.: +49 (0)3 42 3 / 74 89 01 - 0 oder -1 oder nutzen Sie unser Kontaktformular.
Wir beraten Sie gern!
Schauen Sie doch auch einmal in unsere Referenzen der Halbstamm-Blockhäuser und lassen Sie sich dort von weiteren Blockhaussauna und Blockhaus Gartenhaus Modellen inspirieren. Zu unseren Referenzen geht es hier.



