Whitefish Creek I
Gartenblockhaus für Alltag, Party oder Wellness
Unser Gartenblockhaus "Whitefish Creek I" wahlweise mit überdachter Terrasse vorn, seitlich oder beides
Unser Gartenblockhaus "Whitefish Creek I" eignet sich sehr gut als individuell nutzbares Gartenhaus für die Übernachtung am Wochenende, als Gästehaus, für Partys, als Wellness - Gartenblockhaus oder als Rückzugsort mit Kamin & Bibliothek zur Entspannung.
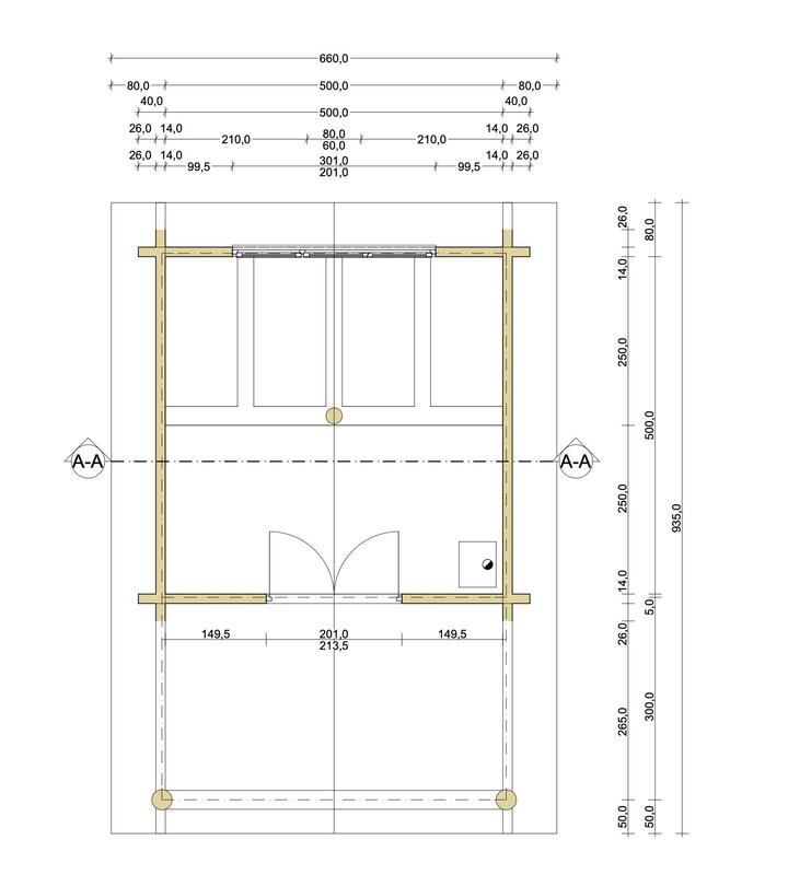
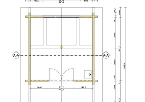
Das Gartenblockhaus hat einen Raum, der unterschiedlich groß gestaltet werden kann (Achsmaße der Wände sind individuell anpassbar, bspw. 3x4m, 5x5m oder 4x6m usw.). Auf Wunsch kann vorn oder seitlich oder sowohl vorn als auch seitlich ein abgeschlepptes Dach montiert werden. Auf diese Weise kann man im Sommer die verschattete Terrasse nutzen oder ist vor einem Regenschauer geschützt.
Wird das Gartenblockhaus "Whitefish Creek I" in Halbstammbauweise gefertigt, ist eine Bodenplatte nicht unbedingt nötig. Ab 4 Punktfundamenten (in Abhängigkeit der Größe) kann das Gartenblockhaus montiert werden. Selbst ein späterer Umzug ist - mit etwas Aufwand - möglich.
Leistungsbeschreibung "Offener Rohbau" des Gartenblockhaus
- Herstellung des Gartenblockhaus - Rohbau in Halbstamm-Bauweise
- Die Stämme sind innenseitig besäumt sowie mit einem Flachschnitt oben und unten versehen
- Als Holzart wird Fichte oder Lärche, Güteklasse B/C, Stärkeklasse 3a/b verwendet
- Die Wanddicke beträgt nach Bearbeitung ca. 14-16cm. Die Höhe je Stamm ca. 20-25cm
- Die Eckverbindungen werden mit einer speziell für Halbstamm-Blockhäuser entwickelten Technik hergestellt
- ein First in Naturstamm ist inkludiert
- Das Holz des Rohbau wird mit einem Bläue- und Schwarzschimmel - Pilzschutz und UV-Blocker gestrichen
- Bis zu zwei Türausschnitte sowie bis zu zwei Fensterausschnitte werden vorbereitet
- Die letzten Stammlagen dienen zugleich als Fußpfette und erhalten die notwendigen Schrägschnitte, so dass ein Satteldach montiert werden kann
Zusatzleistungen bis hin zum schlüsselfertigen Gartenblockhaus:
- Fundamente und Fußboden
- Herstellung von Punktfundamenten und Balkenlage (Schwellholz) oder alternative Herstellung einer Bodenplatte inkl. Schwellholz
- Dämmung des Fußboden und Einbau einer Massivholzdielung
- Bau eines Terrassendeck mit Belegung nach Wahl
- Dach
- Sparren in Konstruktionsvollholz (KvH), Fichte, 10/16 einschließlich Stellbrettern oder in Naturstamm
- Dacheindeckung mit Fasebrett, Fichte, 22,5mm oder Boden-Deckel-Schalung Lärche, unbesäumt
- Dachdämmung und regensichere Notdachfunktion
- Dacheindeckung als Gründach, Ziegeldach, Bitumenschindel oder Metalldacheindeckung (je nach Kundenwunsch, auch verschiedene Farben möglich)
- Rohbau
- "Vor- und Zurück - Optik" der Stämme an den Eckverbindungen
- Wahl zwischen Holzart Fichte oder Lärche
- Wahl ob seitlich abgeschlepptes Dach oder verlängertes Dach am Eingang oder beides
- Die Isolierung zwischen den einzelnen Stammlagen erfolgt auf Wunsch mit einem Fugendichtband
- Schnitzkunst
- Innenausbau
- 1 oder wahlweise 2 Türen / Terrassentüren
- Wahlweise 1 oder 2 Fenster (in Abhängigkeit von der Größe des Gartenblockhaus)
- Kamin und Schornstein
- Schlafboden (optional)
- Anstrich
- Außenanstrich mittels Naturöllasur in einem Farbton Ihrer Wahl
- Zusätzlicher Außenanstrich mit einem Edelwachs- und UV-Blocker optional möglich
- Die Transportkosten richten sich nach der Entfernung und können erst im Zuge einer Angebotserstellung genau bestimmt werden
- Montage
- Wird die Montage durch unser Fachpersonal gewünscht, finden die diesbezüglichen Kosten im Zuge einer Angebotserstellung Berücksichtigung
Unser Gartenblockhaus "Whitefish Creek I" kaufen Sie bereits ab
15.800,- € * zzgl. 19% Mehrwertsteuer
*offener Rohbau frei Abbundplatz in Eilenburg. Preis bezieht sich auf einen 5x5m Grundriss - ohne nach vorn oder seitlich verlängerten Dachflächen und ohne Schlafboden - in Holzart Fichte. Bitte beachten Sie die nebenstehende Leistungsbeschreibung "offener Rohbau". Alternative Grundrisse sowie Zusatzleistungen bis hin zum schlüsselfertigen Blockhaus können nach Absprache ganz individuell + nach Ihren Wünschen angeboten werden. Stand: April 2023
Haben Sie Interesse das Blockhaus Gartenhaus "Whitefish Creek" zu kaufen?
Nehmen Sie zu uns Kontakt auf und fordern Sie noch heute ein unverbindliches Angebot an:
Tel.: +49 (0)3 42 3 / 74 89 01 - 0 oder -1 oder nutzen Sie unser Kontaktformular.
Wir beraten Sie gern!
Schauen Sie doch auch einmal in unsere Referenzen der Halbstamm-Blockhäuser und lassen Sie sich dort von weiteren Blockhaussauna und Blockhaus Gartenhaus Modellen inspirieren. Zu unseren Referenzen geht es hier.
Eine genaue Beschreibung der Zusatzleistungen finden Sie hier:
Zusatzinformationen Ausbauleistung





