Deer River
Unsere große Blockhaussauna mit Vorraum & überdachter Terrasse
Saunaerlebnis mit unserer großen Blockhaussauna "Deer River"
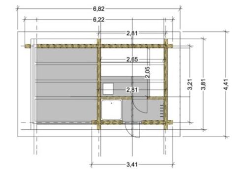
Unsere große Blockhaussauna "Deer River" in Halbstamm-Bauweise hat ein Grundmaß von 2 x 2,62m sowie einen Vorraum von 1,10 x 2,62m*. Optional kann das Dach seitlich verlängert werden, sodass eine überdachte Terrasse von ca. 13 m2 entsteht. Eine weitere Option ist die verlängerte Rückwand. Sie bietet Schutz vor Wind und ist zugleich ein optisches Highlight. Die Blockhaussauna "Deer River" ist für den Garten gut geeignet. Eine Bodenplatte wird nicht unbedingt benötigt. Die Sauna kann auch auf sechs bzw. bei seitlich verlängertem Dach auf acht Punktfundamenten montiert werden. Wahlweise können auch Baumscheiben aus Robinie genutzt werden.
Die Blockhaussauna "Deer River" hat innen besäumte Wände. Sie verfügt über drei Liegeflächen und bietet damit genug Platz für drei Erwachsene liegend oder vier Erwachsene sitzend. Sie wird mit einem elektrischen Saunaofen beheizt. Im Vorraum kann eine Dusche integriert werden. Die Saunatür ist vollständig aus Glas. Die äußere Saunatür verfügt über eine Glaseinlage, sodass genügend Tageslicht einfällt. Eine zusätzliche elektrische Beleuchtung im Vorraum sowie in der Sauna selbst ist kein Problem.
Der Fußboden wird als eingehängter bzw. "fliegender" Fußboden gebaut. Er ist gedämmt und standardmäßig mit massiver Kiefernholzdielung belegt. Das Dach kann als Gründach, Ziegeldach oder mit Bitumenschindel eingedeckt werden.
Ein Außenanstrich mit Naturöl-Lasuren kann von farblos bis Ebenholz erfolgen. Der hohe Grad der Individualisierung erlaubt es, die Blockhaussauna "Deer River" für jeden Geschmack zu bauen.
*Alle Achsmaße sind individuell änderbar und können auf Ihre Bedürfnisse angepasst werden. Der Vorraum kann beispielsweise entfallen und der eigentliche Saunaraum damit vergrößert werden.
Leistungsbeschreibung "Offener Rohbau" der Blockhaus-Sauna
- Herstellung des Blockhaus-Sauna Rohbau in Halbstamm-Bauweise
- Die Isolierung zwischen den einzelnen Stammlagen erfolgt mittels 22mm Rundschnur
- Zwei Türausschnitte und auf Wunsch ein Fensterausschnitt werden vorbereitet
- Gleitrahmen passend zum Tür- bzw. Fensterausschnittmaß werden vorbereitet
- Die letzten Stammlagen dienen zugleich als Fußpfette und erhalten die notwendigen Schrägschnitte
- Die Giebel werden so vorbereitet, dass ein Satteldach montiert werden kann
- Bei optionaler Auswahl des seitlich verlängerten Dach (überdachte Terrasse) wird eine Säule und eine zusätzliche Pfette in Rundstamm gefertigt
- Bei optionaler Auswahl der im Bereich der Terrasse verlängerten Rückwand erhält diese Rückwand die nötigen Schrägschnitte in Dachneigung
- Die Firstpfette ist als Rundstamm ausgeführt
Zusatzleistungen bis hin zur schlüsselfertigen Blockhaus-Sauna:
- Fundamente und Fußboden
- Herstellung von vier oder sechs Stück Punktfundamenten oder alternative Lieferung von vier oder sechs Stück Baumscheiben in Robinie
- Einbau eines eingehängten Fußbodens. Der Fußboden ist gedämmt und mit einer Kiefernholzdielung versehen
- Terrassendeck in massiver Lärche (Optional auch andere Holzarten möglich) im Bereich des Vordaches
- Dach
- Firstpfette in Rundstamm
- Sparren in Konstruktionsvollholz (KvH), Fichte, 10/14 einschließlich Stellbrettern
- Dacheindeckung mit Fasebrett, Fichte, 23mm
- Dachdämmung und regensichere Notdachfunktion
- Dacheindeckung als: Gründach, Ziegeldach oder mittels Bitumenschindel
- Rohbau
- "Vor- und Zurück - Optik" der Stämme an den Eckverbindungen
- Schnitzkunst
- Innenausbau
- Saunatür mit Glaseinlage und Vollglas - Saunatür
- 3 Saunabänke in Espe. Auf Wunsch mit passender Kopfstütze
- Innenraumbeleuchtung
- Saunaofen. Hinweis: Aus Gründen der Gewährleistung müssen Sie den Saunaofen bitte selbst direkt beim Hersteller kaufen. Gern beraten wir Sie hierzu, welches Modell geeignet ist.
- Anstrich
- Außenanstrich mittels Naturöl-Lasur in einem Farbton Ihrer Wahl
- Zusätzlicher Außenanstrich mit einem Edelwachs- und UV-Blocker optional möglich
- Transport / Anlieferung
- Die Transportkosten richten sich nach der Entfernung und können erst im Zuge einer Angebotserstellung genau bestimmt werden
- Montage
- Wird die Montage durch unser Fachpersonal gewünscht, finden die diesbezüglichen Kosten im Zuge einer Angebotserstellung Berücksichtigung
Unsere Blockhaussauna "Deer River" kaufen Sie bereits ab
20.000,- € *inkl. 19% Mehrwertsteuer
*offener Rohbau frei Abbund Platz in Eilenburg. Der Preis beinhaltet bereits: Holzart Fichte, Säulen, Pfette und verlängerte Rückwand für seitliches Schleppdach, First in Rundstamm. Bitte beachten Sie zudem die nebenstehende Leistungsbeschreibung "offener Rohbau". Zusatzleistungen bis hin zur schlüsselfertigen Sauna können nach Absprache ganz individuell + nach Ihren Wünschen angeboten werden. Stand Mai 2025.
Haben Sie Interesse die Blockhaussauna "Deer River" zu kaufen?
Nehmen Sie zu uns Kontakt auf und fordern Sie noch heute ein unverbindliches Angebot an:
Tel.: +49 (0)3 42 3 / 74 89 01 - 0 oder -1 oder nutzen Sie unser Kontaktformular.
Wir beraten Sie gern!
Schauen Sie doch auch einmal in unsere Referenzen der Halbstamm-Blockhäuser und lassen Sie sich dort von weiteren Blockhaussauna und Blockhaus Gartenhaus Modellen inspirieren. Zu unseren Referenzen geht es hier.
Eine genaue Beschreibung der Zusatzleistungen finden Sie hier:
Zusatzinformationen Ausbauleistung




