Little Fox
Unsere kleinste Gartensauna für max. 3 Personen
Saunaerlebnis mit unserer kleinsten Gartensauna
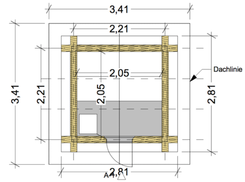
Unsere kleinste Gartensauna "Little Fox" in Halbstamm-Bauweise hat ein Grundmaß von gerade einmal 2x2m*. Sie ist damit perfekt auch für kleine Gärten geeignet. Die Gartensauna "Little Fox" kann ohne Kran montiert werden. Eine Bodenplatte wird ebenfalls nicht benötigt. Die Sauna kann auf vier Punktfundamenten montiert werden. Wahlweise können auch vier Baumscheiben aus Robinie genutzt werden. Die Blockhaussauna kann umgezogen werden, sodass sie selbst auf Pachtgrundstücken eine Option ist.
Die Gartensauna "Little Fox" hat innen besäumte Wände. Sie verfügt über zwei Liegeflächen á 2m Länge. Sie kann damit perfekt für zwei Erwachsene liegend oder drei Erwachsene sitzend genutzt werden. Sie wird mit einem elektrischen Saunaofen beheizt. Die Saunatür verfügt über eine Glaseinlage, sodass Tageslicht einfällt. Eine zusätzliche elektrische Beleuchtung ist kein Problem.
Der Fußboden wird als eingehängter bzw. "fliegender" Fußboden konzipiert. Er ist gedämmt und standardmäßig mit massiver Kiefernholzdielung belegt. Das Dach kann als Gründach, Ziegeldach oder mit Bitumenschindeleindeckung konzipiert werden.
Die äußerliche farbliche Gestaltung reicht von farblos bis Ebenholz. Der hohe Grad der Individualisierung erlaubt es die Blockhaussauna für jeden Geschmack zu bauen.
*Alle Achsmaße sind individuell änderbar und können auf Ihre Bedürfnisse angepasst werden.
Leistungsbeschreibung "Offener Rohbau" der Gartensauna
- Herstellung des Blockhaus-Sauna Rohbau in Halbstamm-Bauweise
- Die Stämme sind innenseitig besäumt sowie mit einem Flachschnitt oben und unten versehen
- Als Holzart wird Fichte oder Lärche, Güteklasse B/C, Stärkeklasse 3a/b verwendet
- Die Wanddicke beträgt nach Bearbeitung ca. 14-16cm. Die Höhe je Stamm ca. 20-25cm
- Die Eckverbindungen werden mit einer speziell für Halbstamm-Blockhäuser entwickelten Technik hergestellt
- Das Holz des Rohbau wird mit einem Bläue- und Schwarzschimmel - Pilzschutz und UV-Blocker gestrichen
- Die Isolierung zwischen den einzelnen Stammlagen erfolgt mit einem vorkomprimierten Fugendichtband
- Ein Türausschnitt wird vorbereitet
- Die letzten Stammlagen dienen zugleich als Fußpfette und erhalten die notwendigen Schrägschnitte
- Die Giebel werden so vorbereitet, dass ein Satteldach montiert werden kann
- Die Firstpfette ist standardmäßig Rundstamm / Naturstamm
Zusatzleistungen bis hin zur schlüsselfertigen Blockhaus-Sauna
- Fundamente und Fußboden
- Herstellung von vier Stück Punktfundamenten oder alternative Lieferung von vier Stück Baumscheiben in Robinie
- Einbau eines eingehängten Fußbodens. Der Fußboden ist gedämmt und mit einer Kiefernholzdielung versehen
- Dach
- Firstpfette in Rundstamm
- Sparren in Konstruktionsvollholz (KvH), Fichte, 10/14 einschließlich Stellbrettern
- Dacheindeckung mit Fasebrett, Fichte, 22,5mm
- Dachdämmung und regensichere Notdachfunktion
- Dacheindeckung als: Gründach, Ziegeldach oder mittels, Bitumenschindel
- Rohbau
- "Vor- und Zurück - Optik" der Stämme an den Eckverbindungen
- Schnitzkunst
- Innenausbau
- Saunatür mit Glaseinlage
- 2 Saunabänke in Abachi oder Fichte. Auf Wunsch mit passender Kopfstütze
- Innenraumbeleuchtung
- Saunaofen (elektrisch). Hinweis: Aus Gewährleistungsgründen müssen Sie sich den Saunaofen bitte selbst beschaffen. Gern geben wir Empfehlungen zum geeigneten Modell.
- Anstrich
- Außenanstrich mittels Naturöllasur in einem Farbton Ihrer Wahl
- Zusätzlicher Außenanstrich mit einem Edelwachs- und UV-Blocker optional möglich
- Transport / Anlieferung
- Die Transportkosten richten sich nach der Entfernung und können erst im Zuge einer Angebotserstellung genau bestimmt werden
- Montage
- Wird die Montage durch unser Fachpersonal gewünscht, finden die diesbezüglichen Kosten im Zuge einer Angebotserstellung Berücksichtigung
Unsere Gartensauna "Little Fox" kaufen Sie bereits ab
7.735,- € *inkl. 19% Mehrwertsteuer
*offener Rohbau frei Abbundplatz in Eilenburg. Bitte beachten Sie die nebenstehende Leistungsbeschreibung "offener Rohbau". Zusatzleistungen bis hin zur schlüsselfertigen Sauna können nach Absprache ganz individuell + nach Ihren Wünschen angeboten werden.
Stand Februar 2025
Haben Sie Interesse die Gartensauna "Little Fox" zu kaufen?
Nehmen Sie zu uns Kontakt auf und fordern Sie noch heute ein unverbindliches Angebot an:
Tel.: +49 (0)3 42 3 / 74 89 01 - 0 oder -1 oder nutzen Sie unser Kontaktformular.
Wir beraten Sie gern!
Schauen Sie doch auch einmal in unsere Referenzen der Halbstamm-Blockhäuser und lassen Sie sich dort von weiteren Blockhaussauna und Blockhaus Gartenhaus Modellen inspirieren. Zu unseren Referenzen geht es hier.
Eine genaue Beschreibung der Zusatzleistungen finden Sie hier:
Zusatzinformationen Ausbauleistung



