Naturstammhaus "Woodsman Cabin"
Naturstammhaus im Bungalowstil. 105qm Wohnfläche ebenerdig.
Beschreibung zum Naturstammhaus "Woodsman Cabin"
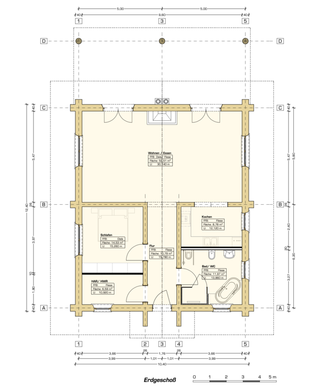
Das Naturstammhaus "Woodsman Cabin" wurde für eine ebenerdige Bewohnbarkeit - im Bungalowstil - entworfen. Die Grundfläche beträgt 12,4x10,4m. Die Netto - Wohnfläche 105qm. Auf Wunsch könnte man aber auch die Dachneigung anheben und ein Obergeschoss hinzufügen.
Das besondere an diesem Naturstammhaus ist der mit 52,5qm Extra - Große Raum für Wohnen & Essen. Die Küche ist separiert und durch einen schmucken Rundbogen - Ausschnitt vom Wohnraum gut erreichbar.
Ebenfalls ein Highlight sind die beiden geblockten Innenwände rechts + links vom Hauseingang, welche auf eine Schwalbenschwanzverkämmung Hausmittig zulaufen.
Das Bad ist so großzügig gestaltet, dass auch eine Infrarot - Saunakabine darin ihren Platz finden würde.
Bei Bedarf kann man über den Räumen HWR / Schlafen / Flur / Bad / Küche eine weitere, bewohnbare Etage schaffen. Das Blockhaus hätte dann 1,5 Etagen und nochmals gut 52qm weitere Wohnfläche. Die Dachneigung müsste dazu angehoben werden.
Die große, überdachte Terrasse am Giebel Wohnen / Essen lädt zum verweilen und entspannen ein.
Für Sonderleistungen und besondere Ausbauleistungen sprechen Sie uns bitte an.
Eckdaten zum Naturstammhaus "Woodsman Cabin"
- Grundfläche: 12,40m x 10,40m
- Wohnfläche EG: 105,17qm
- Räume im EG: 5
- Räume im OG: 0 (bis zu 3 Räume optional möglich bei erhöhter Dachneigung und ggf. zusätzlichem Kniestock)
- Satteldach Hauptdach mit 20 Grad Dachneigung
- Satteldach überdachter Hauseingang
- Pultdach / Schleppdach über Terrasse
Unser Naturstammhaus "Woodsman Cabin" kaufen Sie bereits ab
120.000,- €* zzgl. gesetzlicher Mehrwertsteuer
Im Preis enthalten sind folgende Leistungen:
- Holz aus Sachsen, Thüringen & Bayern. Holzart Fichte, Qualität B/C, Stärkeklasse 3b/4a/4b (mittlerer Stammdurchmesser 40-42cm)
- Herstellung des offenen Rohbau frei Abbundplatz in 04838 Eilenburg (Deutschland)
- Eckverkämmungen als Doppel-Sattel-Verkämmung (Diamond Notch)
- Innere Blockwände mit Schwalbenschwanzverkämmung (Dove Tail)
- First- und Fußpfetten, Säulen, Deckenbalken in Naturstamm
- Terrassendach - Tragkonstruktion in Naturstamm (Säulen, Unterzug, Kopfbänder)
- Dämmung der Längskanäle mit Dichtband (innen + außenseitig des Längskanal) & zusätzlicher Schafwolle von ISOLENA
- 1maliger allseitiger Voranstrich - während Bauphase - aller Stämme zum Schutz vor Bläue- und Schimmelpilzen
- Versiegelung aller Hirnholzflächen mittels Hirnholzwachs
- sämtliche Verbindungsmittel + Stützenfüße (sofern konstruktiv erforderlich)
- Elektrobohrungen und Steckdosen- / Lichtschalterbohrungen - Anzahl nach Wunsch
- Nummerierung der Stämme sowie Abbau + Verladen auf LKW im Zuge der Montage
Für ein vollständiges Angebot inkl. Sparren/Dachstuhl, Montage am Aufbauort und gewünschten Zusatz- und Ausbauleistungen sprechen Sie uns bitte an.
*Preis Stand Juni 2024
Haben Sie Interesse unser Naturstammhaus "Woodsman Cabin" zu kaufen?
Nehmen Sie zu uns Kontakt auf und fordern Sie noch heute ein unverbindliches Angebot an:
Tel.: +49 (0)3 42 3 / 74 89 01 - 0 oder -1 oder nutzen Sie unser Kontaktformular.
Wir beraten Sie gern!
Schauen Sie doch auch einmal in unsere Referenzen und lassen Sie sich dort inspirieren. Zu unseren Referenzen geht es hier.



