Navigation überspringen Sitemap anzeigen

Woodsman CabinNaturstammhaus in Bungalowbauweise mit geblockten Innenwänden

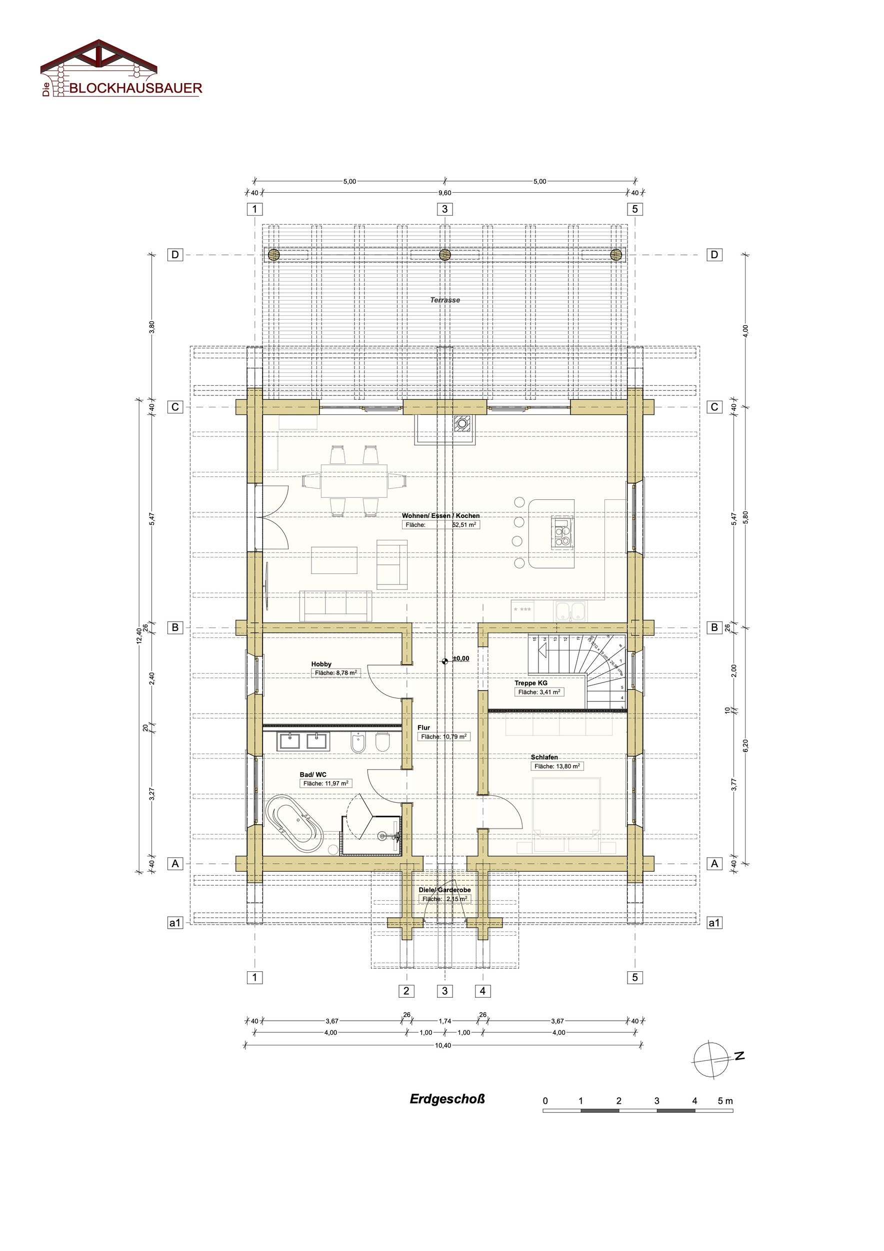
Das Naturstammhaus "Woodsman Cabin" wurde für eine ebenerdige Bewohnbarkeit - im Bungalowstil - entworfen. Die Grundfläche beträgt 12,4x10,4m. Die Netto - Wohnfläche 105qm. Auf Wunsch könnte man aber auch die Dachneigung anheben und ein Obergeschoss hinzufügen.

Das besondere an diesem Naturstammhaus ist der mit 52,5qm Extra - Große Raum für Wohnen & Essen. Die Küche ist separiert und durch einen schmucken Rundbogen - Ausschnitt vom Wohnraum gut erreichbar. 

Ebenfalls ein Highlight sind die beiden geblockten Innenwände rechts + links vom Hauseingang, welche auf eine Schwalbenschwanzverkämmung Hausmittig zulaufen.  

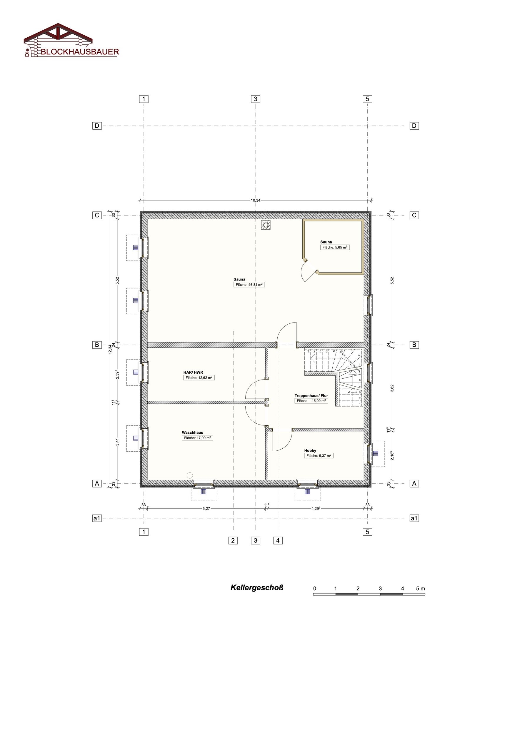
Das Bad ist so großzügig gestaltet, dass auch eine Infrarot - Saunakabine darin ihren Platz finden würde.

Bei Bedarf kann man über den Räumen HWR / Schlafen / Flur / Bad / Küche eine weitere, bewohnbare Etage schaffen. Das Blockhaus hätte dann 1,5 Etagen und nochmals gut 52qm weitere Wohnfläche. Die Dachneigung müsste dazu angehoben werden.

Die große, überdachte Terrasse am Giebel Wohnen / Essen lädt zum verweilen und entspannen ein. Für Sonderleistungen und besondere Ausbauleistungen sprechen Sie uns bitte an.

Bauweisen im Überblick

Den Blockhaus Rohbau "Woodsman Cabin"

128.000,- €* 

Im Preis enthalten sind folgende Leistungen:

  • Holz aus Sachsen. Holzart Fichte, Qualität B/C, Stärkeklasse 3b/4a/4b (mittlerer Stammdurchmesser 40-42cm)
  • Das Holz stammt aus nachhaltiger Fortwirtschaft und ist Holz-von-Hier® Zertifiziert
  • Herstellung des offenen Rohbau frei Abbundplatz in 04838 Eilenburg (Deutschland)
  • Eckverkämmungen als Doppel-Sattel-Verkämmung (Diamond Notch)
  • Innere Blockwände mit Schwalbenschwanzverkämmung (Dove Tail)
  • First- und Fußpfetten, Säulen, Deckenbalken in Naturstamm
  • Terrassendach - Tragkonstruktion in Naturstamm (Säulen, Unterzug, Kopfbänder)
  • Dämmung der Längskanäle mit Dichtband (innen + außenseitig des Längskanal) & zusätzlicher Schafwolle von ISOLENA
  • 1maliger allseitiger Voranstrich - während Bauphase - aller Stämme zum Schutz vor Bläue- und Schimmelpilzen
  • Versiegelung aller Hirnholzflächen mittels Hirnholzwachs
  • sämtliche Verbindungsmittel + Stützenfüße (sofern konstruktiv erforderlich)
  • Elektrobohrungen und Steckdosen- / Lichtschalterbohrungen - Anzahl nach Wunsch
  • Nummerierung der Stämme sowie Abbau + Verladen auf LKW im Zuge der Montage
Expose-Naturstammhaus-Woodsman-Cabin-Die-Blockhausbauer

Für ein vollständiges Angebot inkl. Sparren/Dachstuhl, optionalem Windfang am Hauseingang, Montage am Aufbauort und sonstigen gewünschten Zusatz- und Ausbauleistungen sprechen Sie uns bitte an.

*Preis Stand April 2026

Eckdaten zum Naturstammhaus Woodsman Cabin

  • Grundfläche: 12,40m x 10,40m (alle Achsmaße individuell anpassbar)
  • Wohnfläche EG: 105,17qm
  • Räume im EG: 5
  • Räume im OG: 0 (bis zu 3 Räume optional möglich bei erhöhter Dachneigung und ggf. zusätzlichem Kniestock)
  • Satteldach Hauptdach mit 16 oder 20 Grad Dachneigung (Dachneigung individuell anpassbar)
  • Kleines Satteldach als überdachter Hauseingang (Optional)
  • Alternativ ist ein geschlossener Windfang am Hauseingang möglich
  • Pultdach / Schleppdach über Terrasse (Optional)

Woodsman Cabin

  • Grundfläche: 12,40m x 10,40m
  • Wohnfläche EG: 105,17qm
  • Räume im EG: 5
Zum Seitenanfang