Blockhaus "Whitehorse Lodge"
Blockhaus mit "L-Grundriss" und rund 189qm Netto - Wohnfläche
Beschreibung zum Blockhaus "Whitehorse Lodge"
Eleganter Blockhaustraum auf 1,5 Etagen und rund 189qm Netto - Wohnfläche. Unser Blockhaus "Whitehorse Lodge" vereint großzügiges Wohnen und Funktionalität in einem Grundriss in "L-Form".
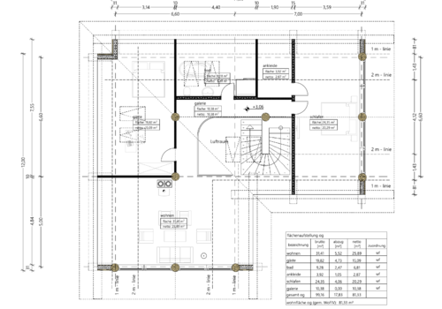
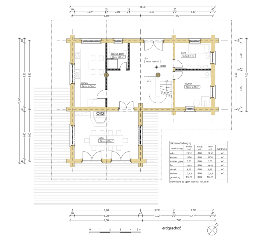
Im Erdgeschoss mit 107qm befindet sich ein Salon / Wohnraum, Küche, Bad, HWR-Raum, Gästezimmer / Arbeitszimmer und Flur mit Treppenaufgang. Im Obergeschoss mit 81,3qm befinden sich sodann ein weiterer Wohnraum, ein Schlafzimmer, ein Gästezimmer sowie ein Bad.
Der Schornstein ist 2-zügig geplant, so dass sowohl im Salon als auch im darüber befindlichen Wohnraum jeweils ein Kamin angeschlossen werden kann.
Natürlich kann das Blockhaus auch mit Extra - Wünschen ausgestattet werden. Bitte sprechen Sie uns bei Interesse darauf an.
Eckdaten zum Blockhaus "Whitehorse Lodge"
- Grundfläche: 14,00m x 12,00m in "L-Form"
- Wohnfläche EG: 107,29qm
- Wohnfläche OG: 81,33qm
- Wohnfläche gesamt: 188,62qm
- Räume im EG: 5
- Räume im OG: 4
- Satteldach mit außenliegenden Fußpfetten
Unser Blockhaus "Whitehorse Lodge" kaufen Sie bereits ab
151.250,- €* zzgl. gesetzlicher Mehrwertsteuer
Im Preis enthalten sind folgende Leistungen:
- Holz aus Sachsen, Thüringen & Bayern. Holzart Fichte, Qualität B/C, Stärkeklasse 3b/4a/4b
- Herstellung des offenen Rohbau frei Abbundplatz in 04838 Eilenburg (Deutschland)
- Pfetten, Säulen, Unterzüge & Deckenbalken in Naturstamm
- Dämmung der Längskanäle mit Dichtband & Schafwolle von ISOLENA
- 1maliger allseitiger Voranstrich - während Bauphase - aller Stämme zum Schutz vor Bläue- und Schimmelpilzen
- Versiegelung sämtlicher Hirnholzflächen mittels Hinrholzwachs
- sämtliche Verbindungsmittel + Stützenfüße (sofern konstruktiv erforderlich)
- 20 Stück Elektrobohrungen und Steckdosen- / Lichtschalterbohrungen (mehr gegen Aufpreis)
- Nummerierung der Stämme sowie Abbau in Vorbereitung der Verladung zur Montage
Für ein vollständiges Angebot inkl. Sparren/Dachstuhl, Montage am Aufbauort und gewünschten Zusatz- und Ausbauleistungen sprechen Sie uns bitte an.
* Preis Stand 01.2025
Haben Sie Interesse das Blockhaus "Whitehorse Lodge" zu kaufen?
Nehmen Sie zu uns Kontakt auf und fordern Sie noch heute ein unverbindliches Angebot an:
Tel.: +49 (0)3 42 3 / 74 89 01 - 0 oder -1 oder nutzen Sie unser Kontaktformular.
Wir beraten Sie gern!
Schauen Sie doch auch einmal in unsere Referenzen und lassen Sie sich dort inspirieren. Zu unseren Referenzen geht es hier.



