Holzblockhaus "Weekender II"
81qm Netto - Wohnfläche auf 1,5 Etagen und große Veranda am Eingang
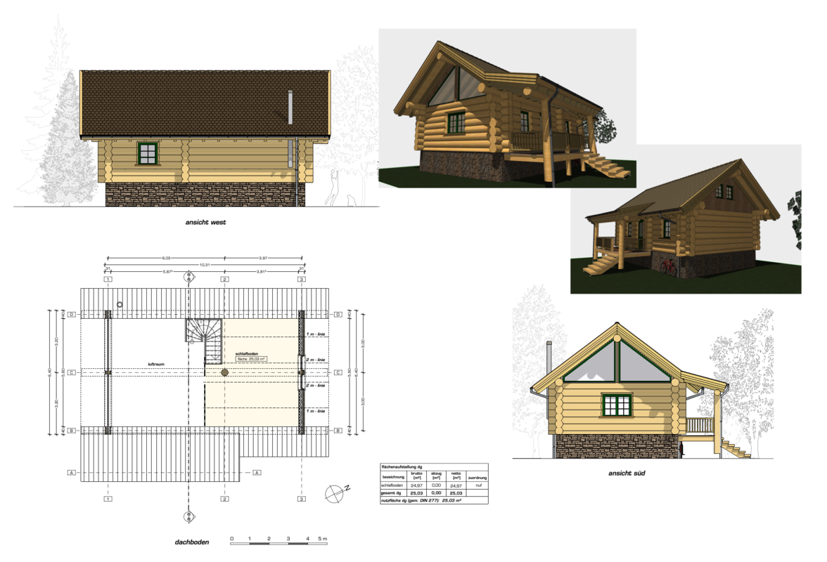
Beschreibung des Holzblockhaus "Weekender II"
Das Holzblockhaus "Weekender II" ist in den Abmaßen identisch mit dem Haus "Weekender I". Die Grundfläche beträgt 6x10m. Die Wohnfläche im Erdgeschoss rund 53qm und im Obergeschoss 28qm.
Im Erdgeschoss gibt es einen großen Raum Kochen / Essen / Wohnen, der bis unter das Dach offen ist (Luftraum). Darüber hinaus gibt es ein Bad und ein Schlafzimmer. Im Obergeschoss gibt es einen weiteren Raum für Schlafen oder Gäste.
Das besondere Highlight des Holzblockhaus "Weekender II" ist die große überdachte Terrasse (Porch) im Hauseingangsbereich.
Für Zusatzleistungen im Ausbau sprechen Sie uns bitte an.
Eckdaten zum Holzblockhaus "Weekender II"
- Grundfläche: 10,40m x 6,40m
- Wohnfläche EG: 50,7qm
- Wohnfläche OG: 28qm
- Wohnfläche gesamt: 78,7qm
- Räume im EG: 3
- Räume im OG: 1 (+1 Optional)
- Satteldach
- Pultdach über Hauseingang
- vollständig geschlossene Zwischendecke möglich, dadurch weitere 28qm Wohnfläche möglich
Kaufen Sie das Holzblockhaus "Weekender II" bereits ab
66.995,- €* zzgl. gesetzlicher Mehrwertsteuer
Im Preis enthalten sind folgende Leistungen:
- Holz aus Sachsen, Thüringen & Bayern. Holzart Fichte, Qualität B/C, Stärkeklasse 3b/4a
- Herstellung des offenen Rohbau frei Abbundplatz in 04838 Eilenburg (Deutschland)
- Eckverkämmung als Diamond Notch (Doppel-Sattel)
- Pfetten, Säulen, Deckenbalken in Naturstamm
- Dämmung der Längskanäle mit Dichtband & Schafwolle von ISOLENA
- 1maliger allseitiger Voranstrich - während Bauphase - aller Stämme zum Schutz vor Bläue- und Schimmelpilzen
- Versiegelung der Hirnholzflächen mittels Hirnholzwachs
- sämtliche Verbindungsmittel + Stützenfüße (sofern konstruktiv erforderlich)
- Bis zu 15 Stück Elektrobohrungen und Steckdosen- / Lichtschalterbohrungen
- Nummerierung der Stämme sowie Abbau + Verladen auf LKW im Zuge der Montage
Für ein vollständiges Angebot inkl. Sparren/Dachstuhl, Montage am Aufbauort und gewünschten Zusatz- und Ausbauleistungen sprechen Sie uns bitte an.
*Preis Stand 06.2025 inkl. geblockter Innenwand
Haben Sie Interesse das Holzblockhaus "Weekender II" zu kaufen?
Nehmen Sie zu uns Kontakt auf und fordern Sie noch heute ein unverbindliches Angebot an:
Tel.: +49 (0)3 42 3 / 74 89 01 - 0 oder -1 oder nutzen Sie unser Kontaktformular.
Wir beraten Sie gern!
Schauen Sie doch auch einmal in unsere Referenzen und lassen Sie sich dort inspirieren. Zu unseren Referenzen geht es hier.



