Naturstammhaus "Trout Creek Lodge"
Mit rund 61qm Netto - Wohnfläche ein kleines unter den großen Naturstammhäusern
Beschreibung zum Naturstammhaus "Trout Creek Lodge"
Die Idee hinter diesem - an und für sich - sehr simplen Grundriss war eine auf das absolut nötigste reduzierte Grundrissform in Verbindung mit einer gewendelten Treppe in das Obergeschoss. So entstand unser Naturstammhaus "Trout Creek Lodge".
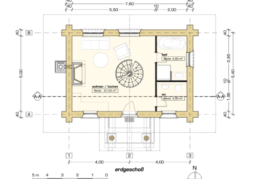
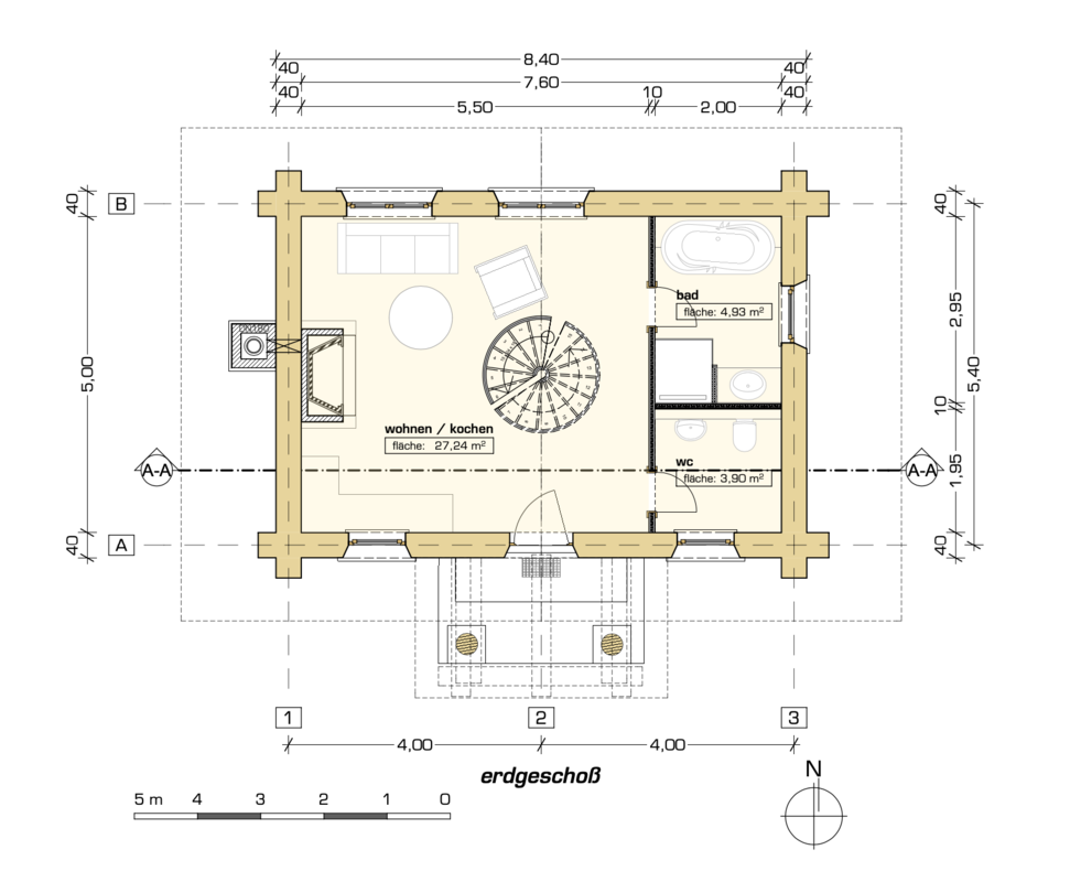
Im Erdgeschoss haben wir rund 36qm Netto - Wohnfläche, verteilt auf einen 27qm großen Raum Wohnen / Kochen / Essen sowie ein Bad + separatem WC. Bei Verzicht auf ein Wannenbad kann das separate WC auch entfallen und statt dessen an dieser Stelle wahlweise eine Küchenzeile oder ein Hauswirtschaftsraum entstehen.
Ebenfalls außergewöhnlich ist der große Kamin im Wohnzimmer, der auf Kundenwunsch aber natürlich auch kleiner gebaut werden oder gänzlich entfallen kann.
Das Obergeschoss erreicht man über eine zentral im Haus positionierte Wendeltreppe. Das Obergeschoss sieht zwei Schlafräume vor, wobei ein Raum auch für Arbeiten und/oder Gäste genutzt werden könnte. Der Einbau einer Gaube könnte optional erfolgen.
Die außenliegenden Fußpfetten schaffen im Obergeschoss zusätzlichen Stauraum und verleihen dem Blockhaus seinen typischen Charme.
Bei individuellen Anpassungen und Sonderleistungen sprechen Sie uns bitte an.
Eckdaten zum Naturstammhaus "Trout Creek Lodge"
- Grundfläche: 8,40m x 5,80m
- Wohnfläche EG: 36qm
- Wohnfläche OG: 24,69qm
- Wohnfläche gesamt: 60,69qm
- Räume im EG: 3
- Räume im OG: 2
- Satteldach mit außenliegenden Fußpfetten
- Gauben optional möglich
- Überdachtes Vordach optional möglich
Unser Naturstammhaus "Trout Creek Lodge" kaufen Sie bereits ab
53.200,- €* zzgl. gesetzlicher Mehrwertsteuer
Im Preis enthalten sind folgende Leistungen:
- Holz aus Sachsen, Thüringen & Bayern. Holzart Fichte, Qualität B/C, Stärkeklasse 3b/4a
- Herstellung des offenen Rohbau frei Abbundplatz in 04838 Eilenburg (Deutschland)
- Pfetten, Säulen, Deckenbalken in Naturstamm (jedoch nicht das Vordach am Hauseingang!)
- Dämmung der Längskanäle mit Dichtband & Schafwolle von ISOLENA
- 1maliger allseitiger Voranstrich - während Bauphase - aller Stämme zum Schutz vor Bläue- und Schimmelpilzen
- sämtliche Verbindungsmittel + Stützenfüße (sofern konstruktiv erforderlich)
- 10 Elektrobohrungen und Steckdosen- / Lichtschalterbohrungen
- Nummerierung der Stämme sowie Abbau + Verladen auf LKW im Zuge der Montage
Für ein vollständiges Angebot inkl. Sparren/Dachstuhl, Montage am Aufbauort und gewünschten Zusatz- und Ausbauleistungen sprechen Sie uns bitte an.
*Preise Stand 02.2024
Haben Sie Interesse unser Naturstammhaus "Trout Creek Lodge" zu kaufen?
Nehmen Sie zu uns Kontakt auf und fordern Sie noch heute ein unverbindliches Angebot an:
Tel.: +49 (0)3 42 3 / 74 89 01 - 0 oder -1 oder nutzen Sie unser Kontaktformular.
Wir beraten Sie gern!
Schauen Sie doch auch einmal in unsere Referenzen und lassen Sie sich dort inspirieren. Zu unseren Referenzen geht es hier.



