Naturstamm-Fachwerk (Post & Beam) Blockhaus "Little Eagle II"
Perfekter Ferien - Blockhaus - Traum für bis zu 4 Personen mit Extra - WC im OG
Unser Naturstamm-Fachwerk (Post & Beam) Blockhaus "Little Eagle II" - Beschreibung
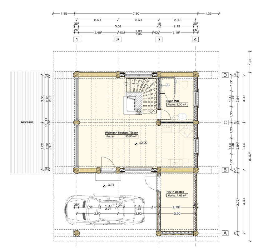
Unser Post & Beam Blockhaus "Little Eagle II" bietet mit einer Grundfläche von 7,80m x 6,30m (49qm) und einer Wohnfläche von rund 77qm (brutto) viel Platz und Komfort.
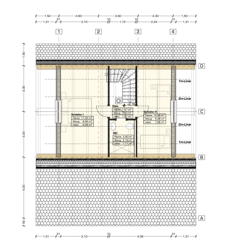
Das Haus verfügt über ein WC im OG, einen großen HWR-Raum (7,86qm) und einen überdachten Carport. Im Erdgeschoss befindet sich ein lichtdurchfluteter Raum für Wohnen, Kochen und Essen nebst Kamin sowie ein Bad. Im OG gibt es 2 Schlafzimmer und ein zweites WC.
Das Blockhaus eignet sich auch ideal zur Vermietung an Urlaubsgäste.
Die Wandstärke der Holztafelwände beträgt rund 268mm, davon sind 240mm gedämmt. Die Blockwände im Grundriss sind optional und können durch Holztafelwände ersetzt werden. Zudem sind im Obergeschoss eine oder sogar zwei Gauben möglich.
Wir bieten eine Vielzahl an Individualisierungsmöglichkeiten für das Blockhaus. Kontaktieren Sie uns für eine persönliche Beratung!
Eckdaten zum Post & Beam Blockhaus "Little Eagle II"
- Grundfläche: 7,80m x 6,30m
- Wohnfläche EG: 42,45qm
- Fläche HWR-Raum: 7,86qm
- Wohnfläche OG: 34,88qm brutto bzw. 18,73qm netto
- Wohnfläche gesamt: 77qm brutto zzgl. HWR-Raum
- Räume im EG: 2
- Räume im OG: 3
- Satteldach
- Blockwände optional
- überdachtes Carport
- Holztafelwände mit KvH 8/18
- Außendämmung der Holztafelwände mittels 60mm Holzfaserdämmplatten
- Innendämmung der Holztafelwände mittels 180mm Holzfaserdämmung
- Gauben mit individueller Größe im OG möglich
- Hoher Grad an Individualisierung möglich. Für eine Beratung stehen wir gern zur Verfügung.
Unser Naturstamm-Fachwerk (Post & Beam) Blockhaus "Little Eagle II" kaufen Sie bereits ab
91.350,- €* zzgl. gesetzlicher Mehrwertsteuer
Zu diesem Preis erwerben Sie von uns bereits eine komplett geschlossene Gebäudehülle inkl. Montage. Im Preis enthalten sind konkret folgende Leistungen:
- Holz aus Sachsen, Thüringen & Bayern. Holzart Fichte, Qualität B/C, Stärkeklasse 3b/4a
- Herstellung sämtlicher Rohbau - Bauteile (Säulen, Rähm, Wände, Deckenbalken, Pfetten, Sparren) frei Abbundplatz in 04838 Eilenburg (Deutschland)
- Pfetten, Säulen, Deckenbalken, Wände und Rähm in Naturstamm
- Sparren in Konstruktionsvollholz (KvH, nsi, Fichte)
- Holztafelwände in KvH, nsi, Fichte
- (Außen)Dämmung der Holztafelwände mittels 60mm Holzfaserdämmplatte
- (Innen)Dämmung der Holztafelwände mittels 180mm Holzfaserdämmung
- Innenseitige Verkleidung der Holztafelwände mittels 15mm OSB/3
- Dämmung der Längskanäle der Blockwände mit Dichtband & Schafwolle von ISOLENA
- 1maliger allseitiger Voranstrich - während Bauphase - aller Stämme zum Schutz vor Bläue- und Schimmelpilzen
- sämtliche Verbindungsmittel
- Elektrobohrungen und Steckdosen- / Lichtschalterbohrungen in Blockwänden - Anzahl nach Wunsch
- Transport sämtlicher Bauteile zum Kunden (Preis kann je nach Entfernung variieren)
- Montage der Blockhausbauteile, der Sparren und der Holztafelwände (Außen- und Innenwände im EG und OG) auf bauseits durch Auftraggeber fertig vorbereiteter Bodenplatte**
- Belegen von Dach und Zwischendecke mittels Profilholz Fasebrett, N/F, Fichte in 24mm bzw. 28mm
- (Außen)Verkleidung der beiden Giebel mittels 30mm Lärchenholz, unbesäumt, gehobelt in Boden-Deckel-Ausführung
- Lieferung und Montage sämtlicher Fenster und Haustür / Tür HWR-Raum (keine Innentüren)
- regensicheres ausbilden des Dach (keine Dämmung, keine Eindeckung, keine Dachklempnerarbeiten)
Für ein vollständiges Angebot und gewünschten Zusatz- und Ausbauleistungen sprechen Sie uns bitte an.
*Preise Stand Oktober 2023
**Anreise- und Übernachtungskosten der Monteure sind noch nicht Bestandteil des Preises, da diese in Abhängigkeit vom Montageort variieren.
Haben Sie Interesse unser Post & Beam Blockhaus "Little Eagle II" zu kaufen?
Nehmen Sie zu uns Kontakt auf und fordern Sie noch heute ein unverbindliches Angebot an:
Tel.: +49 (0)3 42 3 / 74 89 01 - 0 oder -1 oder nutzen Sie unser Kontaktformular.
Wir beraten Sie gern!
Schauen Sie doch auch einmal in unsere Referenzen und lassen Sie sich dort inspirieren. Zu unseren Referenzen geht es hier.



