Naturstamm-Fachwerk (Post & Beam) Blockhaus "Little Eagle I"
Kleiner Blockhaus - Traum für bis zu 4 Personen
Unser Naturstamm-Fachwerk (Post & Beam) Blockhaus "Little Eagle I" - Beschreibung
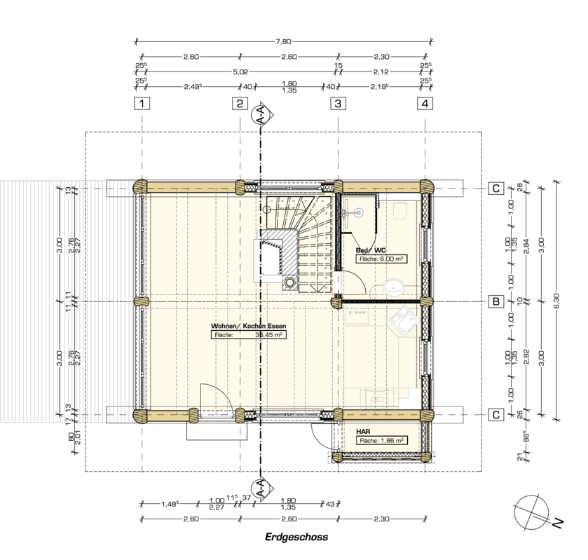
Im Post & Beam Blockhaus "Little Eagle I" steckt mit einer Grundfläche von gerade einmal 49qm (7,80x6,30m) mehr Platz und Wohnlichkeit als man zunächst vermuten mag. Ein großzügiges, lichtdurchflutetes Erdgeschoss mit einem tollen Kamin und einem Bad mit großer Regendusche sowie einer großzügigen Küche lässt keine Wünsche offen. Die Wohnfläche im EG beträgt entsprechend 42,45qm. Hinzu kommt ein Hauswirtschaftsraum mit rund 2qm. Dieser kann bei Bedarf aber auch größer gebaut werden.
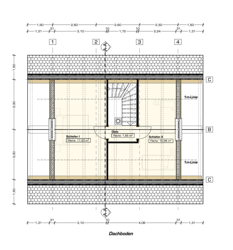
Im Obergeschoss gibt es zwei Schlafräume bzw. ein Schlafzimmer und 1 Arbeits-/Gästezimmer. Die Wohnfläche im OG beträgt 34,88qm (brutto).
Die gesamte Wohnfläche beträgt rund 77qm (brutto).
Die Blockwände im Grundriss sind optional. Man kann alternativ auch auf die Blockwände verzichten und stattdessen Holztafelwände wählen.
Die Wandstärke der Holztafelwände beträgt rund 268mm, davon sind 240mm mittels Holzfaserdämmung gedämmt.
Das Blockhaus kann sehr stark individualisiert werden. Bitte sprechen Sie uns an, wir beraten Sie gern.
Eckdaten zum Post & Beam Blockhaus "Little Eagle I"
- Grundfläche: 7,80m x 6,30m
- Wohnfläche EG: 42,45qm
- Fläche HWR-Raum: 1,86qm (optional erweiterbar)
- Wohnfläche OG: 34,88qm brutto
- Wohnfläche gesamt: 77,33qm (brutto) zzgl. HWR-Raum
- Räume im EG: 2
- Räume im OG: 2
- Satteldach
- Blockwände optional
- Holztafelwände mit KvH 8/18
- Außendämmung der Holztafelwände mittels 60mm Holzfaserdämmplatten
- Innendämmung der Holztafelwände mittels 180mm Holzfaserdämmung
- Hoher Grad an Individualisierung möglich. Für eine Beratung stehen wir gern zur Verfügung.
Unser Naturstamm-Fachwerk (Post & Beam) Blockhaus "Little Eagle I" kaufen Sie bereits ab
85.400,- €* zzgl. gesetzlicher Mehrwertsteuer
Zu diesem Preis erwerben Sie von uns bereits eine komplett geschlossene Gebäudehülle inkl. Montage. Im Preis enthalten sind konkret folgende Leistungen:
- Holz aus Sachsen, Thüringen & Bayern. Holzart Fichte, Qualität B/C, Stärkeklasse 3b/4a
- Herstellung sämtlicher Rohbau - Bauteile (Säulen, Rähm, Wände, Deckenbalken, Pfetten, Sparren) frei Abbundplatz in 04838 Eilenburg (Deutschland)
- Pfetten, Säulen, Deckenbalken, Wände und Rähm in Naturstamm
- Sparren in Konstruktionsvollholz (KvH, nsi, Fichte)
- Holztafelwände in KvH, nsi, Fichte
- (Außen)Dämmung der Holztafelwände mittels 60mm Holzfaserdämmplatte
- (Innen)Dämmung der Holztafelwände mittels 180mm Holzfaserdämmung
- Innenseitige Verkleidung der Holztafelwände mittels 15mm OSB/3
- Dämmung der Längskanäle der Blockwände mit Dichtband & Schafwolle von ISOLENA
- 1maliger allseitiger Voranstrich - während Bauphase - aller Stämme zum Schutz vor Bläue- und Schimmelpilzen
- sämtliche Verbindungsmittel
- Elektrobohrungen und Steckdosen- / Lichtschalterbohrungen in Blockwänden - Anzahl nach Wunsch
- Transport sämtlicher Bauteile zum Kunden (Preis variiert je nach Entfernung)
- Montage der Blockhausbauteile, der Sparren und der Holztafelwände (Außen- und Innenwände im EG und OG) auf bauseits durch Auftraggeber fertig vorbereiteter Bodenplatte**
- Belegen von Dach und Zwischendecke mittels Profilholz Fasebrett, N/F, Fichte in 24mm bzw. 28mm
- (Außen)Verkleidung der beiden Giebel mittels 30mm Lärchenholz, unbesäumt, gehobelt in Boden-Deckel-Ausführung
- Lieferung und Montage sämtlicher Fenster und Haustür / Tür HWR-Raum (keine Innentüren)
- regensicheres ausbilden des Dach (keine Dämmung, keine Eindeckung, keine Dachklempnerarbeiten)
Für ein vollständiges Angebot und gewünschten Zusatz- und Ausbauleistungen sprechen Sie uns bitte an.
*Preise Stand April 2022
**Anreise- und Übernachtungskosten der Monteure sind noch nicht Bestandteil des Preises, da diese in Abhängigkeit vom Montageort variieren.
Haben Sie Interesse unser Post & Beam Blockhaus "Little Eagle I" zu kaufen?
Nehmen Sie zu uns Kontakt auf und fordern Sie noch heute ein unverbindliches Angebot an:
Tel.: +49 (0)3 42 3 / 74 89 01 - 0 oder -1 oder nutzen Sie unser Kontaktformular.
Wir beraten Sie gern!
Schauen Sie doch auch einmal in unsere Referenzen und lassen Sie sich dort inspirieren. Zu unseren Referenzen geht es hier.



