Naturstammhaus "Fall Creek Lodge"
Das perfekte Blockhaus für eine Familie mit bis zu 3 Kindern und Platzbedarf
Beschreibung zum Naturstammhaus "Fall Creek Lodge"
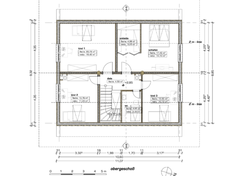
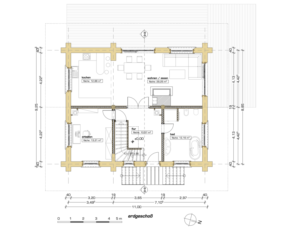
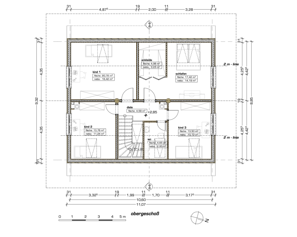
Das Naturstammhaus "Fall Creek Lodge" eignet sich insbesondere für Familien mit Kindern. Im EG des Hauses befindet sich neben Kochen / Essen / Wohnen und dem Hauptbad noch ein Arbeitszimmer. Im OG stehen den Bewohnern 4 Schlafzimmer und 1 kleines Bad zur Verfügung. Das Haus kann voll- oder teilunterkellert gebaut werden.
Die Räume im OG sind in der Gestaltung frei variierbar. So kann beispielsweise bei Verzicht auf einen der vier vorgesehenen Schlafräume auch das Elternschlafzimmer vergrößert werden. Das Haus ist mithin in der Raumaufteilung noch flexibel gestaltbar.
Die Netto Wohnfläche beträgt insgesamt 141,4qm. 78qm davon im EG und rund 63qm im OG.
Die Farbe der Fenster und Türen, die Gestaltung der Dacheindeckung, Kamin ja oder nein, innenseitig besäumte Blockwände, Anzahl und Position von Steckdosen und Lichtschaltern und viele weitere Details können zum Naturstammhaus individuell abgesprochen werden.
Sonderleistungen sind bei der Herstellung kein Problem. Wir können mithin auf Kundenwunsch (auszugsweise) zusätzlich anbieten:
- Balkon(e) im OG - Giebel
- Schiffsgiebel
- Pultdach am Giebel für eine überdachte Terrasse (Sonnenschutz)
- Flugsparren in Naturstamm / Rundstamm
Sprechen Sie uns diesbezüglich einfach ein.
Eckdaten zum Naturstammhaus "Fall Creek Lodge"
- Grundfläche: 11m x 9,25m
- Wohnfläche EG: 78qm
- Wohnfläche OG: 63,3qm
- Wohnfläche gesamt: 141,3qm
- Räume im EG: 3
- Räume im OG: 5
- Satteldach mit außenliegenden Fußpfetten
- Gauben optional möglich
- Pultdach / Schleppdach für überdachte Terrasse optional möglich
Unser Naturstammhaus "Fall Creek Lodge" kaufen Sie bereits ab
80.000,- €* zzgl. gesetzlicher Mehrwertsteuer
Im Preis enthalten sind folgende Leistungen:
- Holz aus Sachsen, Thüringen & Bayern. Holzart Fichte, Qualität B/C, Stärkeklasse 3b/4a/4b
- Herstellung des offenen Rohbau frei Abbundplatz in 04838 Eilenburg (Deutschland)
- Eckverkämmung als Diamond - Notch (Doppel-Sattel)
- Pfetten, Säulen, Deckenbalken in Naturstamm
- Dämmung der Längskanäle mit Dichtband & Schafwolle von ISOLENA
- 1maliger allseitiger Voranstrich - während Bauphase - aller Stämme zum Schutz vor Bläue- und Schimmelpilzen
- Versiegelung der Vorköpfe mittels Hirnholzwachs
- sämtliche Verbindungsmittel + Stützenfüße (sofern konstruktiv erforderlich)
- Elektrobohrungen und Steckdosen- / Lichtschalterbohrungen - Anzahl nach Wunsch
- Nummerierung der Stämme sowie Abbau + Verladen auf LKW im Zuge der Montage
Für ein vollständiges Angebot inkl. Sparren/Dachstuhl, Montage am Aufbauort und gewünschten Zusatz- und Ausbauleistungen sprechen Sie uns bitte an.
*Preis Stand 08.2023
Haben Sie Interesse das Naturstammhaus "Fall Creek Lodge" zu kaufen?
Nehmen Sie zu uns Kontakt auf und fordern Sie noch heute ein unverbindliches Angebot an:
Tel.: +49 (0)3 42 3 / 74 89 01 - 0 oder -1 oder nutzen Sie unser Kontaktformular.
Wir beraten Sie gern!
Schauen Sie doch auch einmal in unsere Referenzen und lassen Sie sich dort inspirieren. Zu unseren Referenzen geht es hier.



