Kanada Blockhaus "Weekender I"
Mit rund 79qm Wohnfläche das ideale Blockhaus für 2 Personen
Unser kanadisches Blockhaus "Weekender I" - Beschreibung
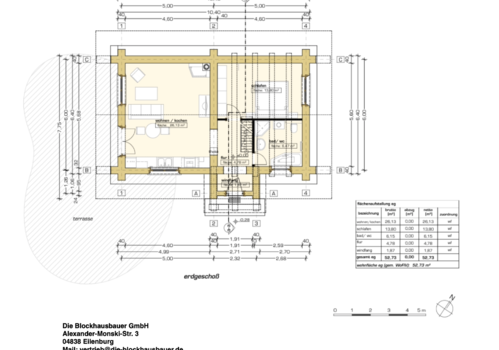
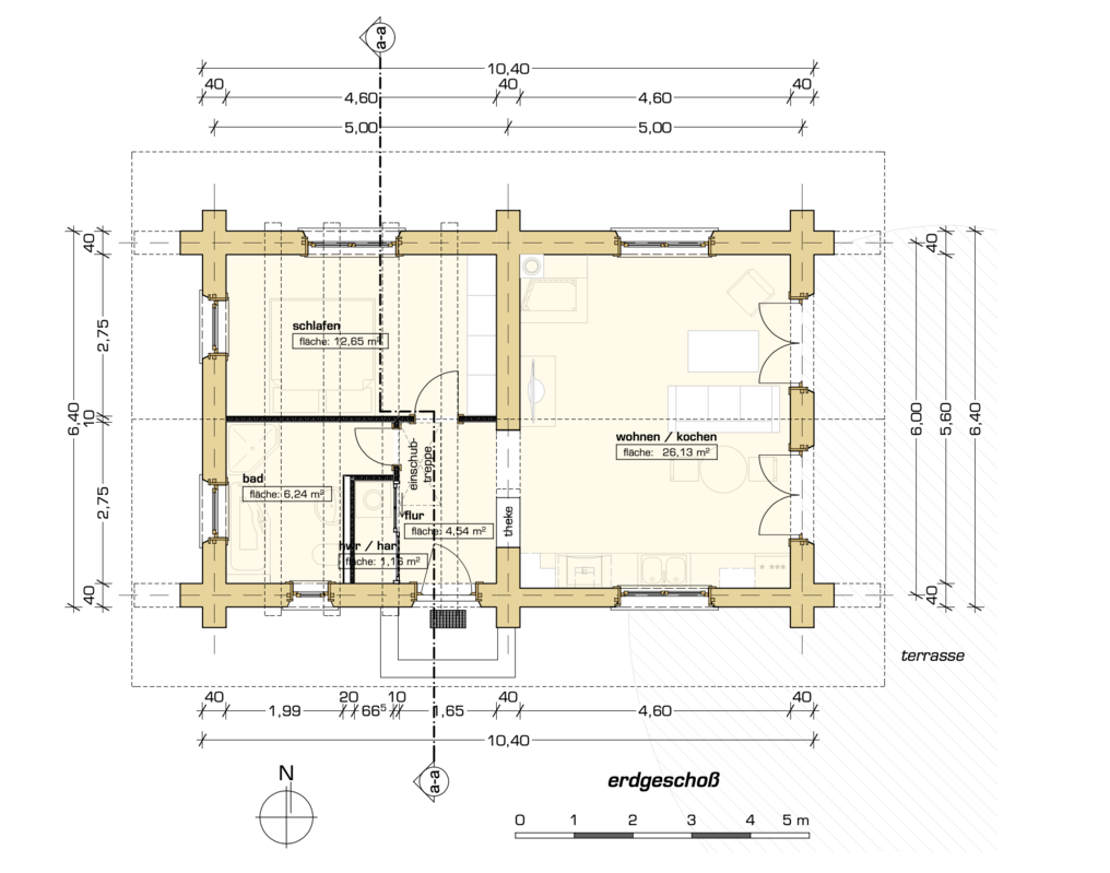
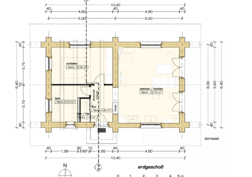
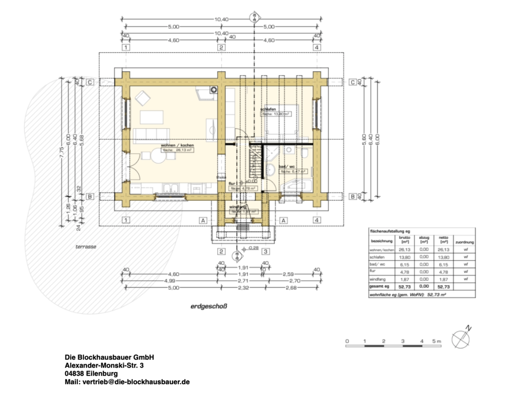
Entdecken Sie das kanadische Blockhaus "Weekender I" mit einer Grundfläche von 6x10m. Optional können Sie einen Windfang hinzubuchen.
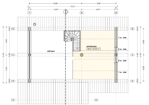
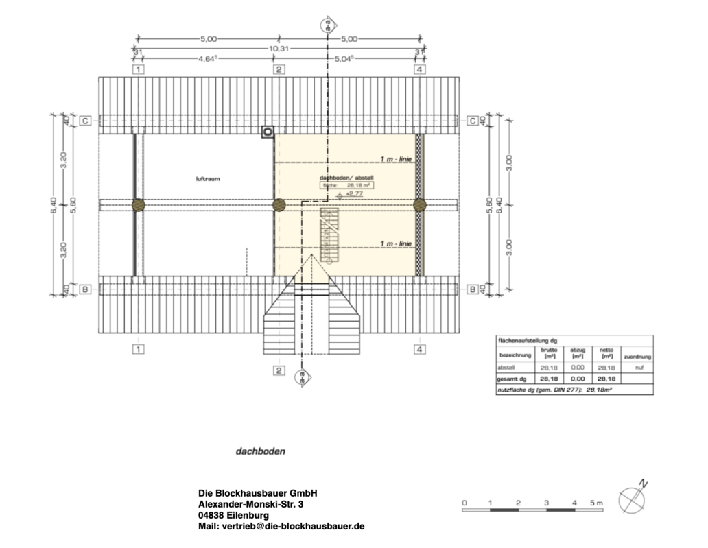
Die Netto-Wohnfläche beträgt im Erdgeschoss rund 51qm und im Obergeschoss 28qm. Im Erdgeschoss finden Sie einen offenen Raum für Kochen, Essen und Wohnen, ein Bad und ein Schlafzimmer. Das Obergeschoss bietet je nach Dachneigung zusätzlichen Raum, der als Abstellraum, Bibliothek oder zweites Schlafzimmer genutzt werden kann. Der Luftraum über dem Wohnraum schafft eine luftige Atmosphäre bis unter das Dach. Durch optionale Anpassungen wie geschlossene Zwischendecken, Kniestock und Gauben kann der Wohnraum weiter vergrößert werden.
Der Windfang kann ebenfalls individuell gestaltet werden, um Ihren Bedürfnissen gerecht zu werden. Mit besäumten Stämmen auf der Innenseite können Sie zusätzlichen Raum gewinnen. Die Position, Anzahl und Größe der Fenster und Tür- sowie Terrassentürausschnitte kann individuell festgelegt werden.
Dieses Blockhaus ist perfekt für 2 Personen und bietet die Möglichkeit für Sonderleistungen nach Ihren Wünschen. Kaufen Sie jetzt Ihr Traum-KanadaBlockhaus!
Eckdaten zum kanadischen Blockhaus "Weekender I"
- Grundfläche: 10,40m x 6,40m
- Wohnfläche EG: 50,7qm
- Wohnfläche OG: 28qm
- Wohnfläche gesamt: 78,7qm
- Räume im EG: 3
- Räume im OG: 1 (+1 Optional)
- Satteldach
- geblockter Windfang optional möglich
- vollständig geschlossene Zwischendecke und damit weitere 28qm Wohnfläche möglich
- die Dachneigung kann individuell verändert werden. Abgebildet sind 30 Grad. Bei höherer Dachneigung - bspw. 41 Grad - ist OG als Schlafboden / Wohnraum nutzbar
- Gauben + Kniestock sind individuell möglich = schafft noch mehr Wohnraum im OG
Unser kanadisches Blockhaus "Weekender I" kaufen Sie bereits ab
67.000,- €* inkl. Windfang und zzgl. gesetzlicher Mehrwertsteuer
(60.995,- €* ohne Windfang und zzgl. gesetzlicher Mehrwertsteuer - siehe Weekender II)
Im Preis enthalten sind folgende Leistungen:
- Holz aus Sachsen, Thüringen & Bayern. Holzart Fichte, Qualität B/C, Stärkeklasse 3b/4a
- Herstellung des offenen Rohbau frei Abbundplatz in 04838 Eilenburg (Deutschland)
- 1 Innenwand und der (optionale) Windfang in Naturstamm
- Pfetten, Säulen, Deckenbalken in Naturstamm
- Dämmung der Längskanäle mit Dichtband & Schafwolle von ISOLENA
- Versiegelung der Hirnholzflächen mittels Hirnholzwachs
- 1maliger allseitiger Voranstrich - während Bauphase - aller Stämme zum Schutz vor Bläue- und Schimmelpilzen
- sämtliche Verbindungsmittel + Stützenfüße (sofern konstruktiv erforderlich)
- bis zu 15 Elektrobohrungen und Steckdosen- / Lichtschalterbohrungen
- Nummerierung der Stämme sowie Abbau + Verladen auf LKW im Zuge der Montage
Für ein vollständiges Angebot inkl. Sparren/Dachstuhl, Montage am Aufbauort und gewünschten Zusatz- und Ausbauleistungen sprechen Sie uns bitte an.
*Preis Stand 01.2024
Haben Sie Interesse unser Kanada Blockhaus "Weekender I" zu kaufen?
Nehmen Sie zu uns Kontakt auf und fordern Sie noch heute ein unverbindliches Angebot an:
Tel.: +49 (0)3 42 3 / 74 89 01 - 0 oder -1 oder nutzen Sie unser Kontaktformular.
Wir beraten Sie gern!
Schauen Sie doch auch einmal in unsere Referenzen und lassen Sie sich dort inspirieren. Zu unseren Referenzen geht es hier.



